ID CP2933788

Hale de închiriat-zona străzii Corneliu Coposu

Această proprietate nu mai este activă,
te invităm să vizualizezi proprietăți similare

ID CP2933788

3,000 € + 21% TVA

Spațiu industrial de închiriat
Dambul Rotund, Cluj-Napoca
600 mp
1990

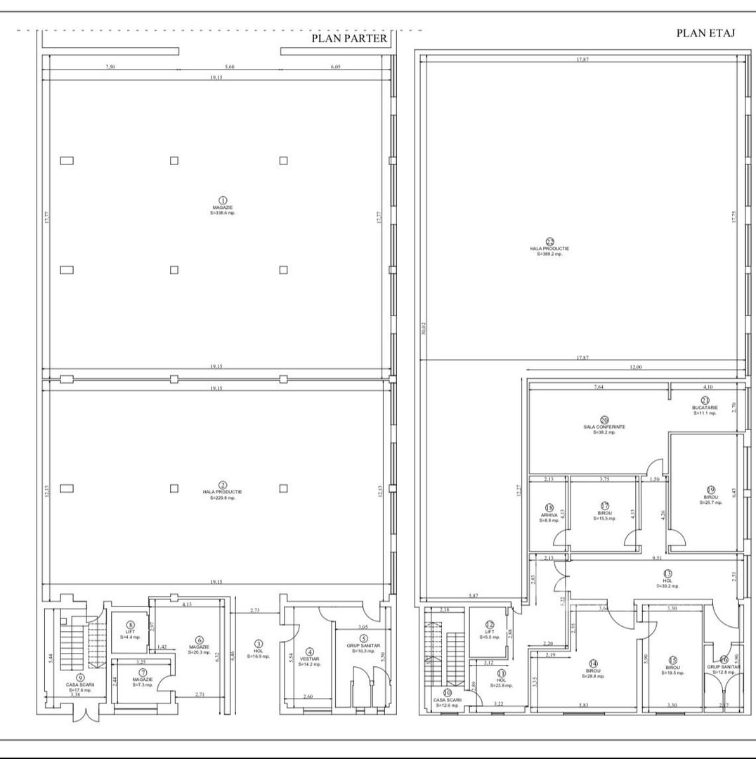
Impakt Imobiliare vă propune spre închiriere spații industriale și hale de producție/depozitare situate în zona Corneliu Coposu, cu acces facil pentru transport greu și infrastructură completă pentru activități industriale.

🏭 Hale disponibile:

Hala 600 mp

• Dimensiuni: 20 m x 30 m

• Înălțime: 9 m

• Pod rulant

• Putere mare instalată

• Acces TIR

Hala 750 mp

• Dimensiuni: 20 m x 37 m

• Înălțime: 4,5 m

• Putere mare instalată

• Curte proprie

• Acces auto și TIR

Hala 700 mp – Etaj 1

• Dimensiuni: 20 m x 35 m

• Înălțime: 4,5 m

• Spațiu ideal pentru producție ușoară, depozitare sau logistică

Hala 2.100 mp

• Parter + Etaj

• Suprafață generoasă pentru activități industriale complexe sau logistică integrată

Utilități și facilități (valabile pentru toate halele):

✔ Gaz

✔ Curent electric (putere mare instalată)

✔ Apă

✔ Canalizare

✔ Curte proprie

✔ Acces auto și TIR

✔ Mijloace de transport în comun în imediata apropiere

Proprietățile sunt potrivite pentru:

▪ Producție industrială

▪ Logistică și depozitare

▪ Service auto / atelier

▪ Activități comerciale cu componentă industrială

Pentru detalii suplimentare privind prețul, disponibilitatea și programarea unei vizionări, vă invităm să ne contactați.

Impakt Imobiliare – Spații industriale strategice pentru afaceri în dezvoltare.

Citește mai mult

  • Tip imobil
    Hală
  • Etaj
    Parter, 1
  • Număr camere
    4
  • Număr băi
    2
  • An construcție
    1990
  • Suprafață utilă
    600 mp
  • Înălțime interioară
    9.0
  • Disponibilitate
    Imediat
  • Compartimentare spațiu
    Parțial compartimentat

Facilități

Acces auto
Acces TIR
Apă
Canalizare
Curent
Curent trifazic (380V)
Gaz
La șosea
Luminatoare
Parcare deschisă
Posibilitate de compartimentare
Sistem de alarmă
Străzi asfaltate
Teren împrejmuit
Uși de acces
Vestiar
Necesare:

Site-ul nu poate funcționa corect fără aceste cookie-uri. Vezi cookie-urile

Statistică:

Strângem statistici anonime despre voi, vizitatorii unici, pentru a vă îmbunătăți experiența dumneavoastră. Vezi cookie-urile

Marketing:

Pentru a ne promova mai eficient serviciile noastre, folosim cookies pentru a vă identifica și a vă oferi proprietăți și servicii personalizate. Vezi cookie-urile

Acest site folosește cookies, află detalii. Alege ce tipuri de cookies dorești să permitem: