ID CP2479206

Imobil 500 mp pe teren 2023 mp – ideal pentru clinica sau investitie!

ID CP2479206

1,890,000 €

Spațiu comercial de vânzare
Buna Ziua, Cluj-Napoca
500 mp

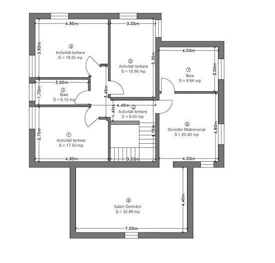
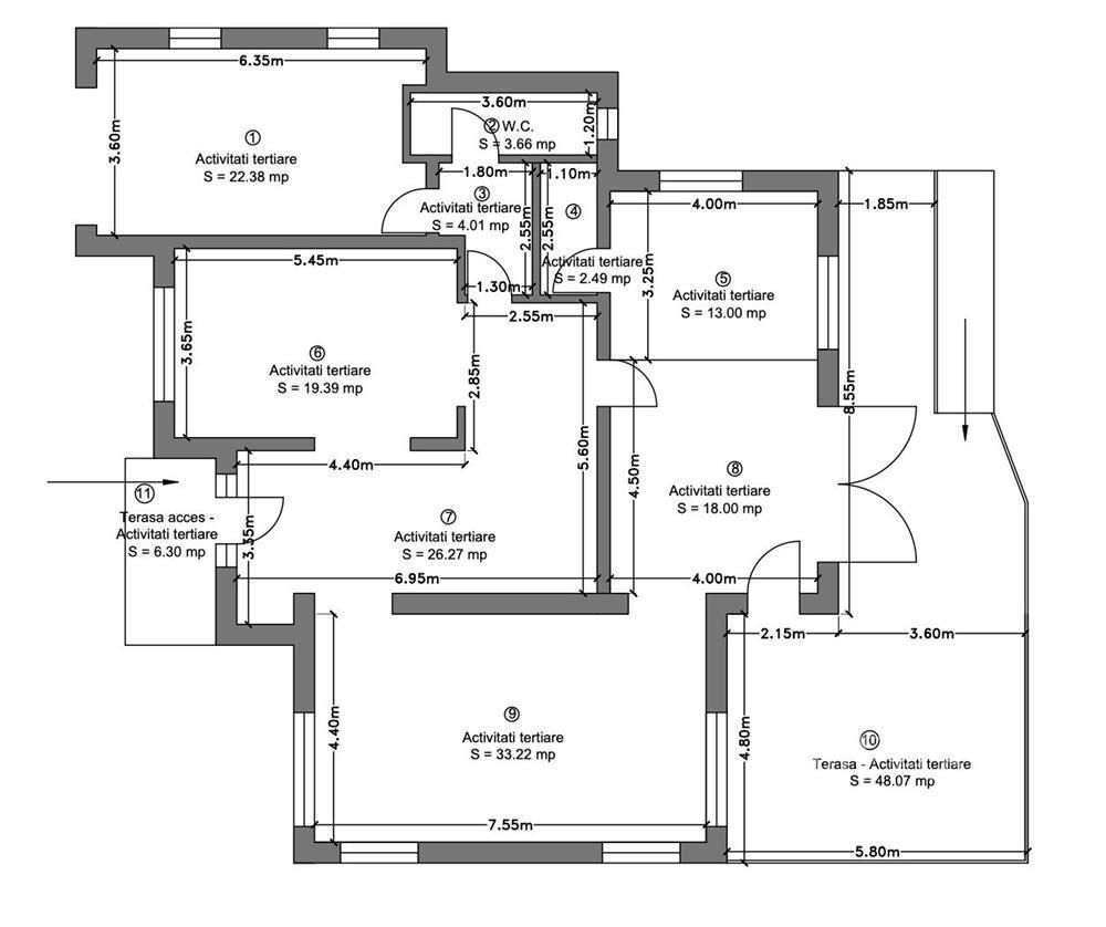
Impakt Imobiliare propune spre vânzare un imobil spațios de 500 mp, dispus pe 3 niveluri (D+P+E), amplasat pe un teren generos de 2023 mp, in cartierul Buna Ziua, cu un front stradal de aproximativ 35 ml și o adâncime de cca. 55 ml.

La parter regăsim un antreu, patru camere (una dintre ele transformată din garaj în atelier), o bucătărie cu cămară, baie și o terasă de 46 mp cu acces direct din bucătărie și camera de zi. Etajul oferă patru camere, două băi, si o zona de mansardă o cameră suplimentară destinată depozitării.

Notă importantă:

În prezent, imobilul este folosit preponderent ca spațiu de lucru/atelier, motiv pentru care aranjamentul actual, diferă de cel standard rezidențial, care apare in poze. Cu toate acestea, compartimentarea și suprafața generoasă permit o adaptare rapidă atât pentru locuire, cât și pentru activități comerciale sau mixte.

Soluția perfectă pentru o clinică sau spațiu de business:

Datorită compartimentării, suprafeței generoase și curții ample, această proprietate este o alegere ideală pentru deschiderea unei clinici medicale, cabinet stomatologic, centru de recuperare sau orice alt business care are nevoie de spații multiple, bine delimitate. În plus, curtea de 2000 mp permite amenajarea facilă a unei parcări private pentru pacienți sau clienți.

Oportunitate de investiție imobiliară:

Pentru investitori, terenul de 2023 mp și deschiderea de 35 ml deschid multiple posibilități: de la construcția unui bloc de mici dimensiuni, până la dezvoltarea unor unități locative individuale sau chiar a unui ansamblu exclusivist.

Detalii tehnice:

Suprafață utilă: 500 mp

Regim: D+P+E

Teren: 2023 mp

Front stradal: 35 ml

Adancime: 55 ml

Despre zonă:

Amplasată în cartierul Bună Ziua, una dintre cele mai căutate zone rezidențiale și comerciale din Cluj-Napoca, proprietatea beneficiază de acces facil către centru, dar și către principalele artere ale orașului. În apropiere regăsim supermarketuri, restaurante, școli, clinici și spații de birouri, ceea ce face zona extrem de potrivită atât pentru locuire, cât și pentru dezvoltarea unei afaceri. Cu o poziționare foarte bună și flexibilitate ridicată în utilizare, această proprietate poate deveni fie sediul unei afaceri de succes, fie baza unui proiect imobiliar profitabil.

De ce să alegi Impakt Imobiliare:

Colaborând cu Impakt Imobiliare, beneficiezi de experiența unei echipe care cunoaște în detaliu piața imobiliară din Cluj-Napoca și care îți oferă consultanță completă, de la prezentare până la negociere și încheierea tranzacției. Alegerea noastră înseamnă siguranță, transparență și acces la cele mai bune oportunități imobiliare.

Impakt Imobiliare – partenerul tău de încredere pentru alegerea potrivită.

Programează o vizionare și descoperă potențialul acestei proprietăți!

Citește mai mult

  • Tip imobil
    Casă / Vilă
  • Etaj
    Demisol, Parter, 1
  • Număr camere
    8
  • Număr băi
    3
  • Număr terase
    2
  • Număr bucătării
    1
  • Suprafață utilă
    500 mp
  • Suprafață teren
    2,023 mp
  • Front stradal
    35.0 m
  • Înălțime interioară
    2.8
  • Disponibilitate
    Imediat
  • Număr etaje clădire
    1
  • Are demisol
    Da

Facilități

Apă
Canalizare
Curent
Gaz
Parcare deschisă
Iulian Istrati - Impakt Imobiliare
Iulian Istrati
Consilier Imobiliar

0755-143.674


Solicită chiar acum o vizionare
Nume
Telefon
Email
Sună acum Solicită vizionare
Necesare:

Site-ul nu poate funcționa corect fără aceste cookie-uri. Vezi cookie-urile

Statistică:

Strângem statistici anonime despre voi, vizitatorii unici, pentru a vă îmbunătăți experiența dumneavoastră. Vezi cookie-urile

Marketing:

Pentru a ne promova mai eficient serviciile noastre, folosim cookies pentru a vă identifica și a vă oferi proprietăți și servicii personalizate. Vezi cookie-urile

Acest site folosește cookies, află detalii. Alege ce tipuri de cookies dorești să permitem: