ID CP2930399

Spațiu comercial de vânzare - Piața Marasti - Rond OMV

ID CP2930399

450,000 €

Spațiu comercial de vânzare
Marasti, Cluj-Napoca
315 mp

Impakt Imobiliare vă propune spre vânzare un spațiu comercial amplu, desfășurat pe 4 niveluri (Subsol + Parter + Etaj 1 + Etaj 2), situat într-o zonă accesibilă din Cluj-Napoca, beneficiind de toate utilitățile și facilitățile necesare desfășurării unei activități comerciale sau administrative complexe.

Suprafață utilă totală: 315 mp

Regim de înălțime: S + P + 2E

Destinație: spațiu comercial / birouri / clinică / showroom / activități educaționale

Acte la zi | Fără sarcini

Compartimentare:

• Sală – 85,631 mp

• Sală – 53,402 mp

• Sală – 36,266 mp

• Sală – 32,468 mp

• Sală – 33,899 mp

• Spații auxiliare:

• 18,306 mp

• 14,690 mp

• 11,210 mp

• 8,454 mp

• 7,198 mp

• 5,236 mp

• 5,104 mp

• 2,901 mp

Include: grupuri sanitare, vestiar, spații tehnice, casa scării.

Subsolul este generos compartimentat, ideal pentru activități logistice, depozitare sau funcțiuni auxiliare.

PARTER

Nivel ideal pentru recepție, showroom sau activitate comercială cu acces facil.

Compartimentare:

• Spațiu principal – 36,357 mp

• Birou / spațiu secundar – 14,060 mp

• Spații auxiliare – 3,372 mp și 3,345 mp

• Casa scării – 12,056 mp

Acces direct din exterior.

ETAJ 1

Etaj compartimentat eficient pentru activitate de birouri sau spații administrative.

Compartimentare:

• Spațiu – 13,997 mp

• 2 încăperi de 6,53 m lungime (aprox. 3,70 m lățime)

• 2 încăperi de 4,77 m lungime

• Casa scării – 12,056 mp

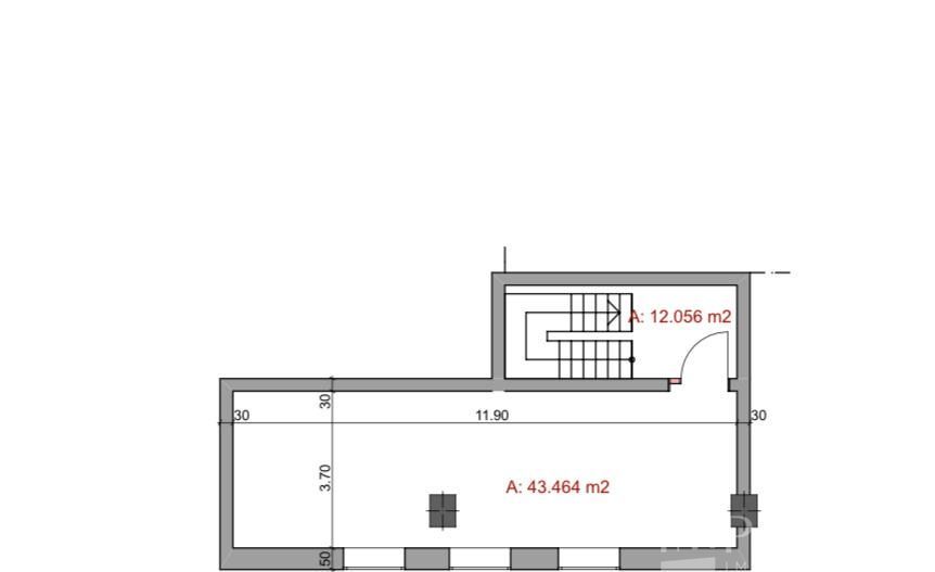
ETAJ 2

Etaj open-space, ideal pentru sală de ședințe, activități educaționale sau birou tip hub.

Compartimentare:

• Open space – 43,464 mp

• Casa scării – 12,056 mp

Facilități și dotări:

✔ Racorduri complete la utilități (apă, canalizare, gaz, electricitate, termoficare)

✔ Ventilații și spații tehnice

✔ Acces separat pentru aprovizionare

✔ Lift / infrastructură pentru aprovizionare (conform părților comune ale clădirii)

✔ Casa scării interioară pe toate nivelurile

✔ Spațiu versatil, ideal pentru business cu activitate mixtă (operare + administrativ + depozitare)

Potrivit pentru:

• Clinică medicală

• Școală / centru educațional

• Hub de birouri

• Showroom + depozit

• Activitate comercială complexă

Pentru detalii suplimentare privind prețul și programarea unei vizionări, vă stăm la dispoziție telefonic.

Impakt Imobiliare – Investiții sigure, spații construite pentru dezvoltare.

Citește mai mult

  • Tip imobil
    Centru comercial
  • Trafic pietonal
    Intens
  • Etaj
    Demisol, Parter, Mezanin, 1
  • Număr camere
    12
  • Suprafață utilă
    315 mp
  • Disponibilitate
    Imediat
  • Compartimentare spațiu
    Compartimentat
  • Număr etaje clădire
    11
  • Are demisol
    Da

Facilități

Acces secundar marfă
Apă
Canalizare
Centrală termică
Contorizare separată
Curent
Gaz
Iulian Sandu - Impakt Imobiliare
Iulian Sandu
Consilier Imobiliar

0756-195.577


Solicită chiar acum o vizionare
Nume
Telefon
Email
Sună acum Solicită vizionare
Necesare:

Site-ul nu poate funcționa corect fără aceste cookie-uri. Vezi cookie-urile

Statistică:

Strângem statistici anonime despre voi, vizitatorii unici, pentru a vă îmbunătăți experiența dumneavoastră. Vezi cookie-urile

Marketing:

Pentru a ne promova mai eficient serviciile noastre, folosim cookies pentru a vă identifica și a vă oferi proprietăți și servicii personalizate. Vezi cookie-urile

Acest site folosește cookies, află detalii. Alege ce tipuri de cookies dorești să permitem: