ID CP2468229

Teren pentru dezvoltare | Clinica, aparthotel, birouri | Buna Ziua

ID CP2468229

720,000 €

Teren de 898 mp de vânzare
Buna Ziua, Cluj-Napoca
898 mp

Impakt Imobiliare propune spre vânzare un teren intravilan cu potențial excepțional, amplasat în cartierul Buna Ziua, una dintre cele mai dinamice zone de dezvoltare din Cluj-Napoca.

Proprietatea are o suprafață de 898 mp, beneficiază de regim urbanistic S_Is – 2S+P+3E+Retras și dispune de utilități pe parcelă. Documentația pentru proiect este deja pregătită pentru depunere la autorizare.

Proiecte disponibile:

Clădire medicală (clinică, centru de recuperare, policlinică) – adaptată cererii mari din zonă pentru servicii de sănătate;

Clădire mixtă/aparthotel – potrivită pentru investiții cu randament ridicat, în contextul cererii pentru locuințe temporare și spații de închiriat.

Decizia finală aparține cumpărătorului, proiectul fiind flexibil și pregătit pentru depunere la autorizație.

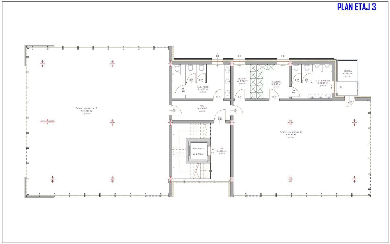
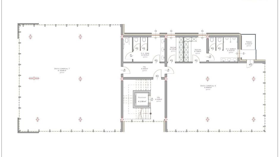
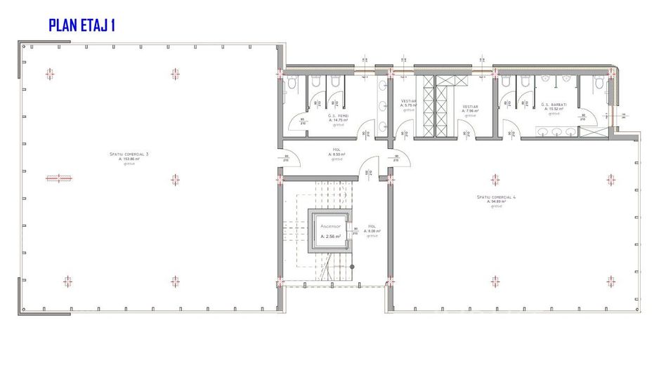
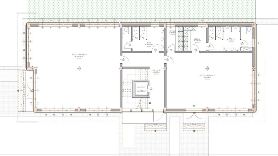
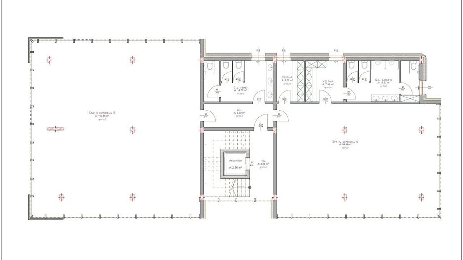
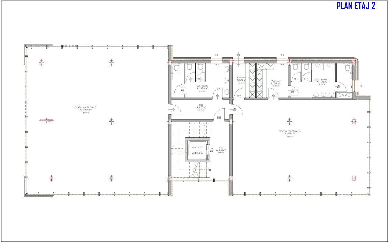
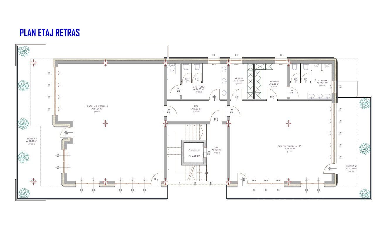
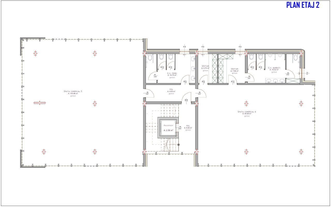
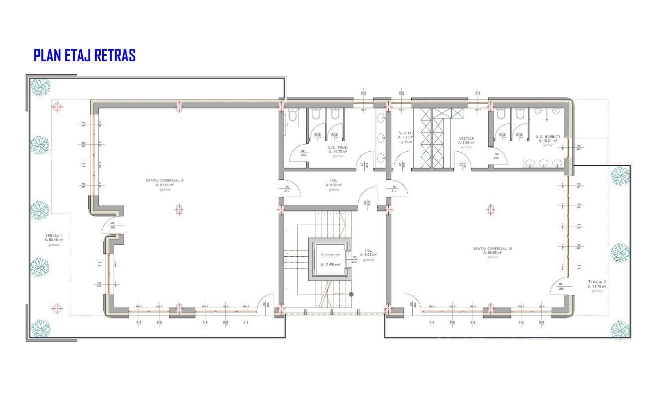
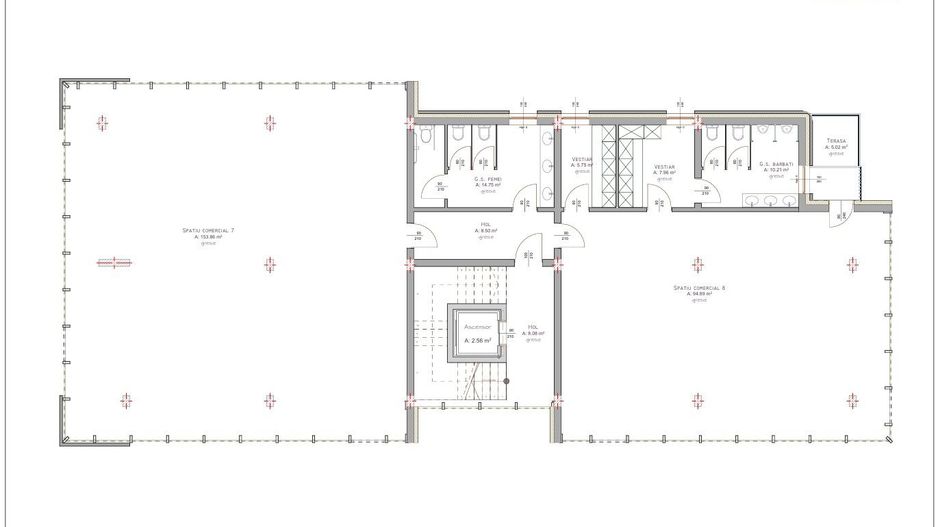
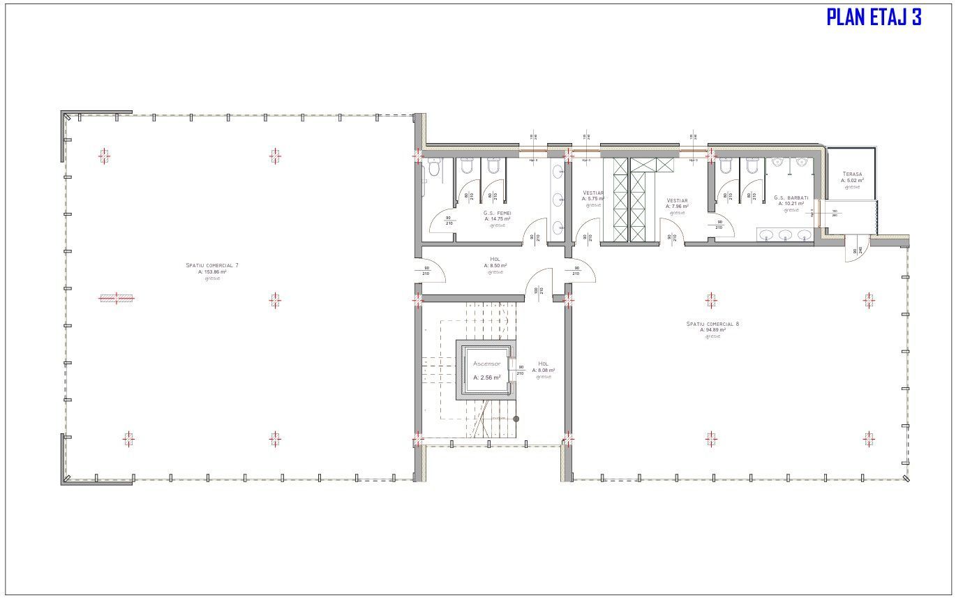
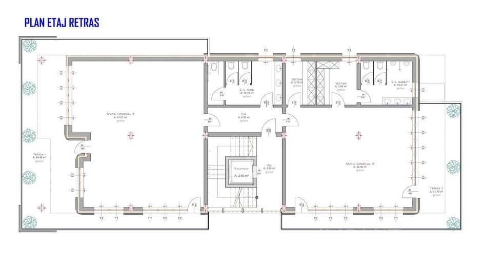
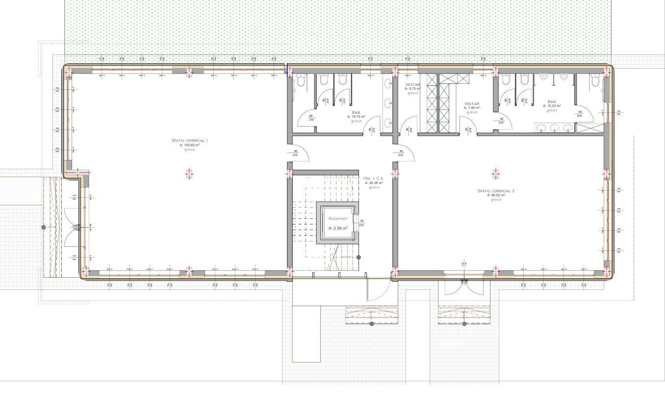
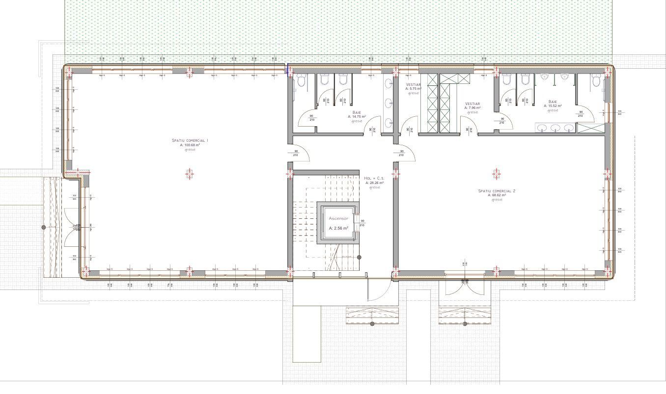
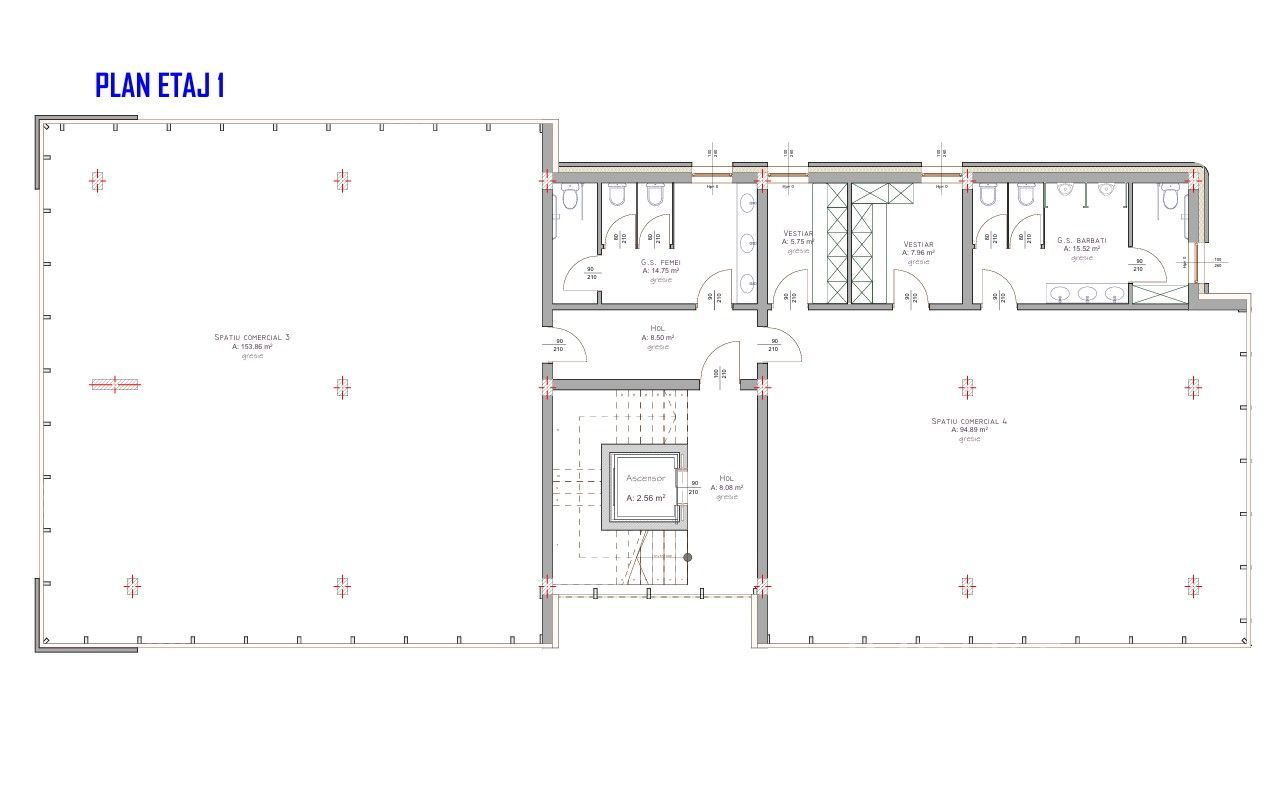
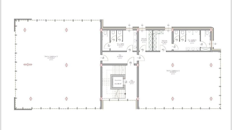
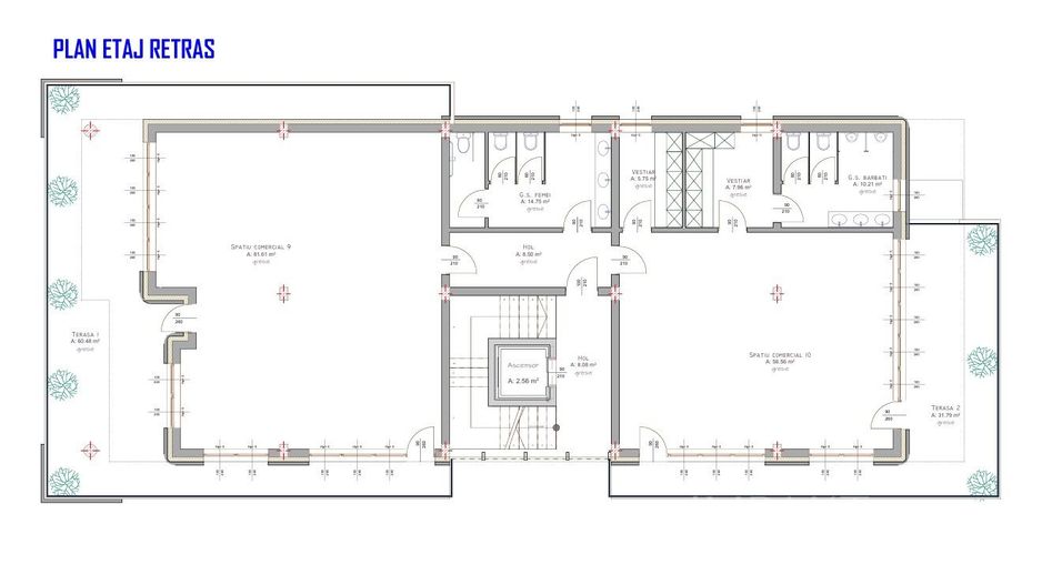
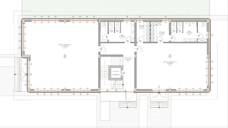
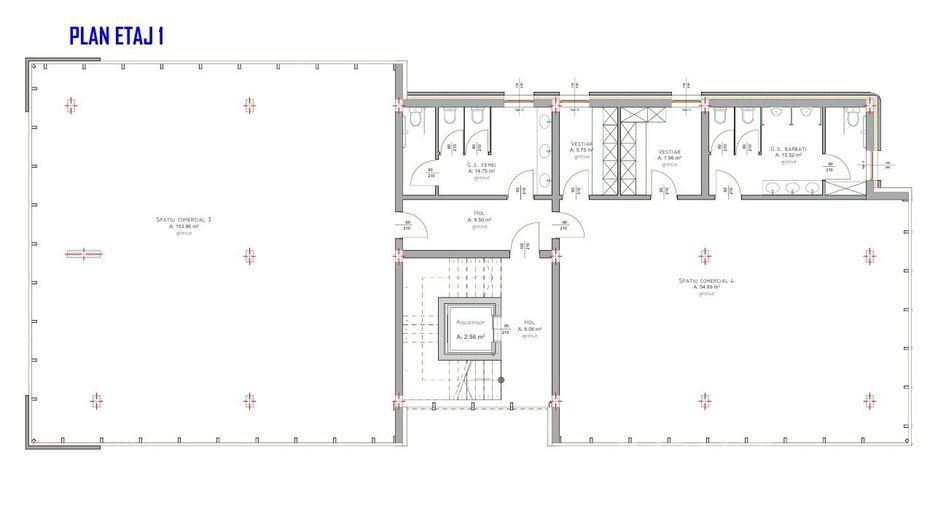
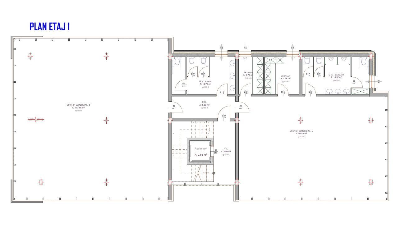
Suprafețe propuse (exemplu proiect Clinica):

Subsol: 378 mp

Parter: 242 mp

Etaj 1: 246 mp + 17 mp terasă

Etaj 2: 246 mp + 17 mp terasă

Etaj 3: 214 mp + 17 mp terasă

Etaj retras: 196 mp + 8 mp terasă

Avantaje investiționale:

Dosar pregătit pentru depunerea la autorizație (se depune în funcție de interesul cumpărătorului).

Poziționare strategică, acces rapid catre centrul orașului.

Cartier în plină dezvoltare, cu cerere ridicată pentru servicii medicale și locuințe premium.

Acces rapid la Calea Turzii, grădinițe, magazine, restaurante și facilități urbane.

Aceasta este o oportunitate rară pentru investitori care caută un teren cu documentație clară, poziționare bună și flexibilitate în tipul de dezvoltare.

Contactează echipa Impakt Imobiliare pentru detalii complete și pentru a analiza împreună scenariul investițional potrivit pentru tine.

Citește mai mult

  • Tip teren
    Construcții
  • Suprafață teren
    898 mp
  • Front stradal
    30.0 m
  • Număr fronturi stradale
    2
  • Deschidere la
    Șosea
  • Lățime drum acces
    6.0 m
  • Clasificare
    Intravilan
  • Valoare incidență
    364.45
  • Disponibilitate
    Imediat
  • CUT
    2.2
  • POT (%)
    60.0
  • PUZ Aprobat
    Da
  • PUD Aprobat
    Da
  • Număr etaje clădire
    3
  • Număr etaje retrase
    1
  • Număr subsoluri
    3

Facilități

Acces auto
Apă
Canalizare
Curent
Gaz
Iluminat stradal
La șosea
Mijloace de transport în comun
Oportunitate de investiții
Străzi asfaltate
Studiu Geo
Iulian Istrati - Impakt Imobiliare
Iulian Istrati
Consilier Imobiliar

0755-143.674


Solicită chiar acum o vizionare
Nume
Telefon
Email
Sună acum Solicită vizionare
Necesare:

Site-ul nu poate funcționa corect fără aceste cookie-uri. Vezi cookie-urile

Statistică:

Strângem statistici anonime despre voi, vizitatorii unici, pentru a vă îmbunătăți experiența dumneavoastră. Vezi cookie-urile

Marketing:

Pentru a ne promova mai eficient serviciile noastre, folosim cookies pentru a vă identifica și a vă oferi proprietăți și servicii personalizate. Vezi cookie-urile

Acest site folosește cookies, află detalii. Alege ce tipuri de cookies dorești să permitem: