ID CP2929186

Casa individuala Feleacu cu teren de 700 m2

ID CP2929186

615,000 €

Casă / Vilă cu 5 camere de vânzare
Feleacu
237 mp
2026

Casa individuala Feleacu in curs de edificare constructie caramida de calitate superioara, cu izolatie exterioara performanta, respectand cele mai inalte standarde de constructie moderne. Locuinta ofera confort, functionalitate si eficienta energetica, fiind proiectata pentru o familie care apreciaza spatiile generoase si finisajele de calitate.

Suprafata utila: 237 m²

Suprafata teren: 700 m²

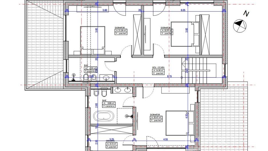
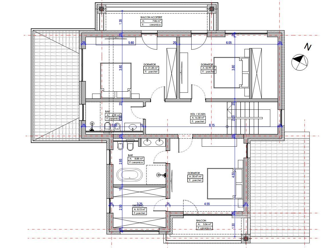
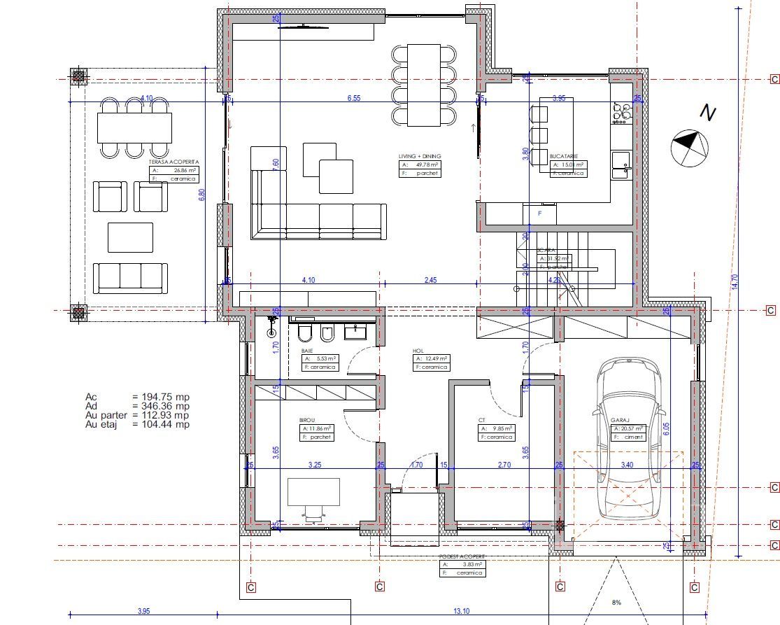
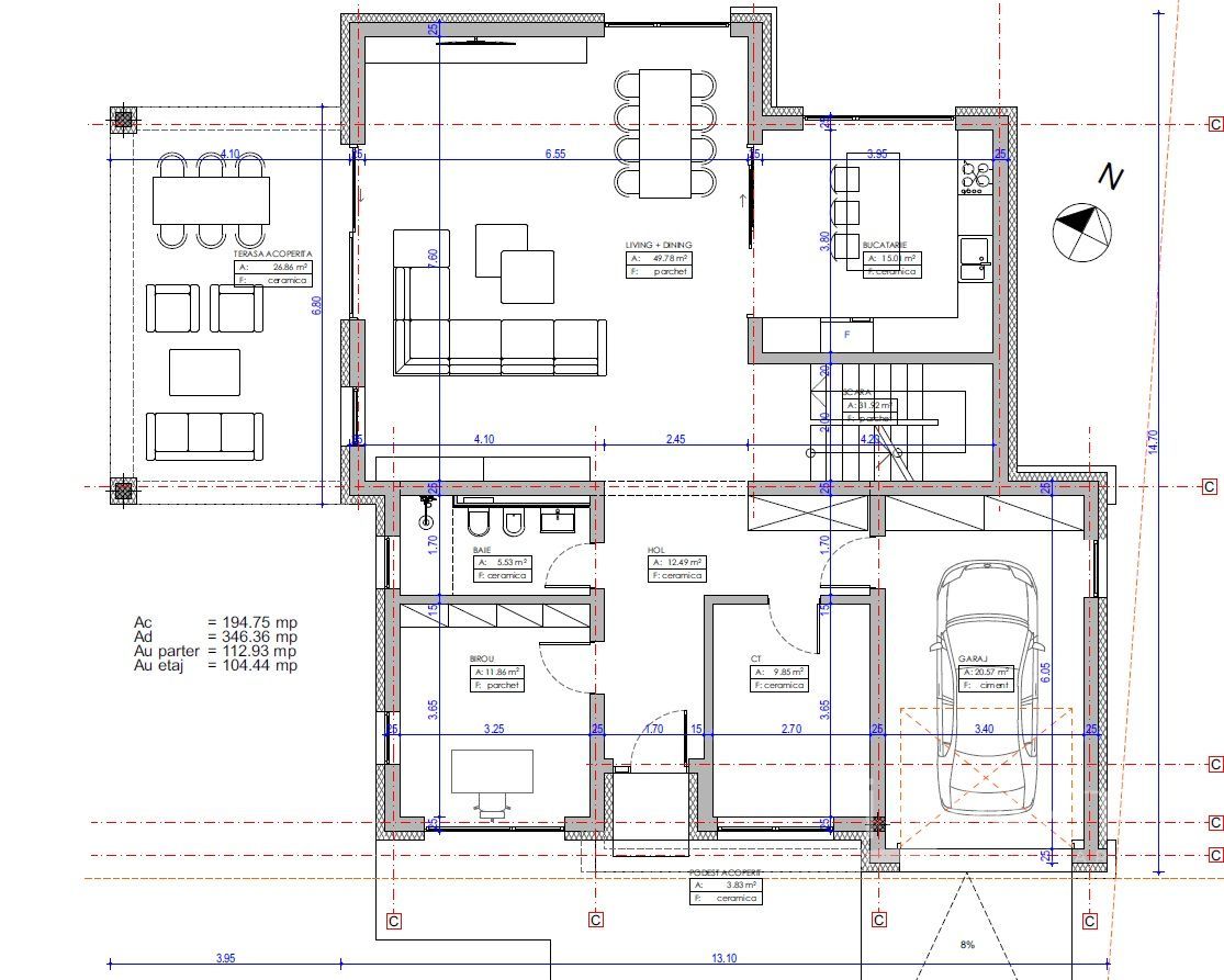
Parter

Living si dining – spatiu luminos, cu acces direct la terasa.

Bucatarie moderna, integrata cu zona de dining.

Hol primitor, care faciliteaza circulatia intre camere.

Baie – pentru oaspeti si uz cotidian.

Birou – spatiu dedicat pentru munca sau studiu.

Garaj – cu acces direct din interior.

Uscatorie / Camera centralei – spatiu tehnic pentru sistemul de incalzire si depozitare rufe.

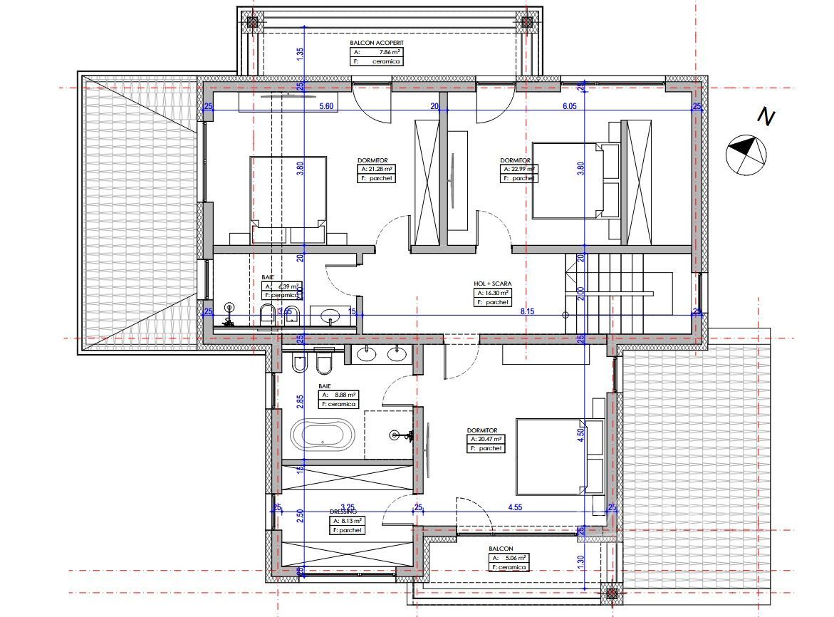
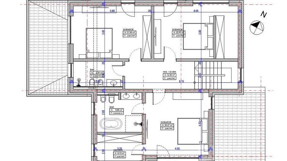
Etaj

3 dormitoare – luminoase si spatioase, cu acces la 2 balcoane.

Dormitor matrimonial – cu baie proprie si dressing generos.

2 bai – una pentru dormitoarele secundare, complet utilata.

Exterior si curte

Curte amenajata, cu spatii verzi si zona de relaxare.

Instalatii la pozitie, pregatite pentru utilizare imediata.

Exterior finalizat, cu fatada termoizolata si finisaje de calitate superioara.

Aceasta casa este ideala pentru o familie care isi doreste un camin modern, spatios si eficient energetic, cu finisaje de top si o curte generoasa, in zona linistita si pitoreasca a Feleacului.

Pret 520.000 Eur - SEMIFINISATA

650.000 Eur - FINISATA

Citește mai mult

  • Număr camere
    5
  • Număr bucătării
    1
  • Număr băi
    3
  • Număr balcoane
    2
  • Disponibilitate
    Imediat
  • Tip casă
    Individual
  • Stare interior
    Semifinisat
  • Suprafață utilă
    237 mp
  • Suprafață construită
    346 mp
  • Suprafață construită la sol (Amprentă)
    140.0 mp
  • Suprafață teren
    700 mp
  • Deschidere
    15 m
  • Acoperiș
    Țiglă
  • Stadiu construcție
    Finalizată
  • An construcție
    2026
  • Construcție nouă
    Da
  • Tip construcție
    Cărămidă
  • Clasă Energetică
    A

Facilități

Apă
Curent
Gaz
Geamuri termopan
Grădină proprie
Încălzire prin pardoseală
Internet
Ovidiu Stetco - Impakt Imobiliare
Ovidiu Stetco
Manager - Expert Imobiliar

0754-038.635


Solicită chiar acum o vizionare
Nume
Telefon
Email
Sună acum Solicită vizionare
Necesare:

Site-ul nu poate funcționa corect fără aceste cookie-uri. Vezi cookie-urile

Statistică:

Strângem statistici anonime despre voi, vizitatorii unici, pentru a vă îmbunătăți experiența dumneavoastră. Vezi cookie-urile

Marketing:

Pentru a ne promova mai eficient serviciile noastre, folosim cookies pentru a vă identifica și a vă oferi proprietăți și servicii personalizate. Vezi cookie-urile

Acest site folosește cookies, află detalii. Alege ce tipuri de cookies dorești să permitem: