ID CP3061227

Casa tip duplex, 5 camere, teren 410 mp, panorama spectaculoasa

ID CP3061227

435,000 €

Casă / Vilă cu 5 camere de vânzare
Dambul Rotund, Cluj-Napoca
161 mp
2026

Casa tip duplex moderna, 5 camere, teren 410 mp, panorama spectaculoasa asupra orasului – cartier Dambul Rotund

Va propunem spre vanzare o unitate duplex dispusa pe 2 niveluri, situata intr-o zona linistita si retrasa din Dambul Rotund, ce ofera un avantaj rar: o panorama ampla si neobstructionata asupra orasului.

Imobilul este in curs de edificare, cu autorizatie de construire (AC) obtinuta, iar termenul estimat de finalizare este sfarsitul anului 2026.

Proprietatea se evidentiaza prin orientarea sudica, suprafetele vitrate generoase si deschiderea catre terasa si curte, toate gandite pentru a valorifica la maximum privelistea si lumina naturala pe tot parcursul zilei. Locuinta este bine compartimentata ideal pentru o familie :

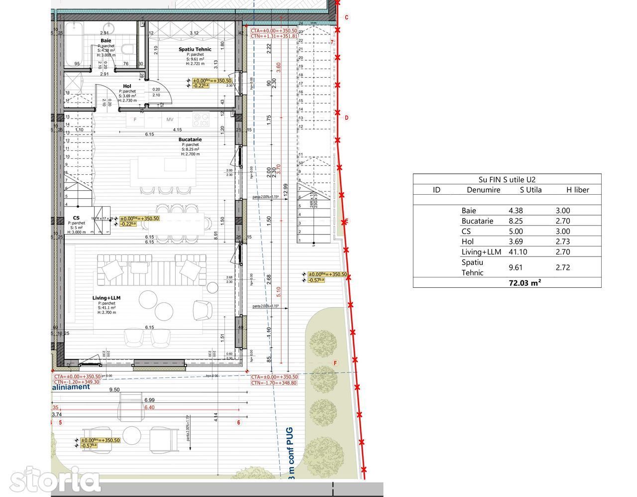
-Parter: Living spatios cu zona de dining si bucatarie open-space (54 mp), cu acces pe terasa, baie, camera tehnica cu iesire in curte, hol cu spatiu de depozitare

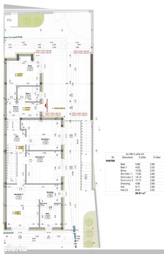
-Etaj: birou, 2 dormitoare deservite de o baie comuna, dormitor matrimonial cu baie proprie si dressing.

Zona de zi si dormitorul matrimonial beneficiaza de vedere panoramica asupra orasului – un atu rar in aceasta zona.

Exterior:

2 locuri de parcare semiacoperite + posibilitate parcare in curte

Curte proprie generoasa

Localizare:

Acces facil catre puncte de interes: statie autobuz, scoala si gradinita, zona comerciala, gara si centrul orasului.

Specificatii tehnice:

-Incalzire si racire prin pompa de caldura

-Incalzire in pardoseala

-Pregatire pentru ventilatie

-Panouri solare

Pret 435.000 Eur (Vanzarea se face de pe persoana fizica, tranzactie nepurtatoare de TVA)

Citește mai mult

  • Număr camere
    5
  • Dormitoare
    4
  • Număr bucătării
    1
  • Număr băi
    3
  • Disponibilitate
    Imediat
  • Tip casă
    Duplex
  • Stare interior
    Semifinisat
  • Suprafață utilă
    161 mp
  • Suprafață construită
    232 mp
  • Suprafață construită la sol (Amprentă)
    90.0 mp
  • Suprafață teren
    410 mp
  • Deschidere
    12 m
  • Acoperiș
    Tablă
  • Stadiu construcție
    În construcție
  • An construcție
    2026
  • Construcție nouă
    Da
  • Tip construcție
    Cărămidă
  • Număr etaje clădire
    1
  • Are etaj tehnic
    Da

Facilități

Apă
Canalizare
Curent
Ferestre PVC
Grădină proprie
Încălzire prin pardoseală
Interfon
Izolație exterioară
Parcare acoperită
Pompă de căldură
Vedere panoramică
Ovidiu Stetco - Impakt Imobiliare
Ovidiu Stetco
Manager - Expert Imobiliar

0754038635


Solicită chiar acum o vizionare
Nume
Telefon
Email
Sună acum Solicită vizionare
Necesare:

Site-ul nu poate funcționa corect fără aceste cookie-uri. Vezi cookie-urile

Statistică:

Strângem statistici anonime despre voi, vizitatorii unici, pentru a vă îmbunătăți experiența dumneavoastră. Vezi cookie-urile

Marketing:

Pentru a ne promova mai eficient serviciile noastre, folosim cookies pentru a vă identifica și a vă oferi proprietăți și servicii personalizate. Vezi cookie-urile

Acest site folosește cookies, află detalii. Alege ce tipuri de cookies dorești să permitem: