ID CP2605772

Penthouse pe doua niveluri cu 5 camere in cartierul Buna Ziua!

ID CP2605772

498,000 €

Apartament cu 5 camere de vânzare
Buna Ziua, Cluj-Napoca
160 mp
2009

Va propunem spre vanzare un penthouse spectaculos, recent renovat, dispus pe două niveluri, situat în cartierul Bună Ziua – o zonă apreciată pentru liniște și acces facil către punctele de interes ale orașului.

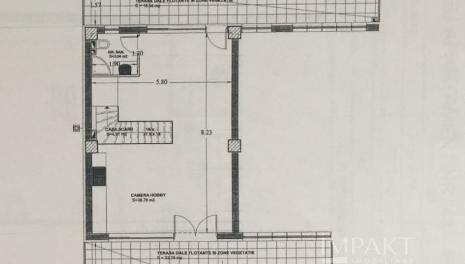
La primul nivel, apartamentul oferă un living generos, o bucătărie complet utilată, trei dormitoare, două băi, un dressing spațios și două terase de 16,22 mp, respectiv 14,33 mp, ce oferă o priveliște splendidă.

Etajul superior este configurat ca un spațiu open space, ideal pentru living, birou, cameră de joacă sau cameră de oaspeți. Acesta dispune de o baie și două terase de 22,78 mp și 18,94 mp.

Suprafața utilă a apartamentului este de 160 mp, la care se adaugă 72 mp de terase. Se închiriază complet mobilat și utilat, cu finisaje moderne, de calitate superioară, și a fost recent renovat.

În prețul afișat este inclus și un loc de parcare în garajul subteran al imobilului.

Pentru detalii suplimentare sau programarea unei vizionări, vă așteptăm la sediul nostru sau ne puteți contacta telefonic.

Citește mai mult

  • Tip apartament
    Apartament
  • Compartimentare
    Semidecomandat
  • Număr camere
    5
  • Număr bucătării
    1
  • Număr băi
    3
  • Etaj
    6
  • Suprafață utilă
    160 mp
  • Suprafață construită
    250 mp
  • Suprafață totală
    232 mp
  • Suprafață terasă
    70 mp
  • Disponibilitate
    Imediat
  • Orientare
    Sud-Est
  • Confort
    Lux
  • Stare interior
    Ultrafinisat
  • Număr balcoane
    4
  • Imobil
    Bloc de apart.
  • Stadiu construcție
    Finalizată
  • An construcție
    2009
  • Construcție nouă
    Da
  • Tip construcție
    Cărămidă
  • Număr etaje clădire
    6

Facilități

Aer condiționat
Apă
Aragaz
Bucătărie utilată
Canalizare
Centrală imobil
Curent
Faianță
Frigider
Garaj
Gaz
Geamuri termopan
Gresie
Interfon
Internet
Lift
Mașină de spălat rufe
Parchet laminat
TV
Ovidiu Stetco - Impakt Imobiliare
Ovidiu Stetco
Manager - Expert Imobiliar

0754038635


Solicită chiar acum o vizionare
Nume
Telefon
Email
Sună acum Solicită vizionare
Necesare:

Site-ul nu poate funcționa corect fără aceste cookie-uri. Vezi cookie-urile

Statistică:

Strângem statistici anonime despre voi, vizitatorii unici, pentru a vă îmbunătăți experiența dumneavoastră. Vezi cookie-urile

Marketing:

Pentru a ne promova mai eficient serviciile noastre, folosim cookies pentru a vă identifica și a vă oferi proprietăți și servicii personalizate. Vezi cookie-urile

Acest site folosește cookies, află detalii. Alege ce tipuri de cookies dorești să permitem: