ID CP2516384

Spatiu de birouri premium – Etaj 1- in inima orasului Cluj-Napoca

ID CP2516384

7,000 € + 21% TVA

Spațiu de birouri de închiriat
Ultracentral, Cluj-Napoca
363 mp
2024

Oferim spre inchiriere un spatiu de birouri elegant si versatil, situat la etajul 1 al unei cladiri moderne si reprezentative, cu regim de inaltime P+4, amplasata intr-o zona centrala de referinta a Clujului – ideala pentru activitati corporate, consultanta sau servicii profesionale.

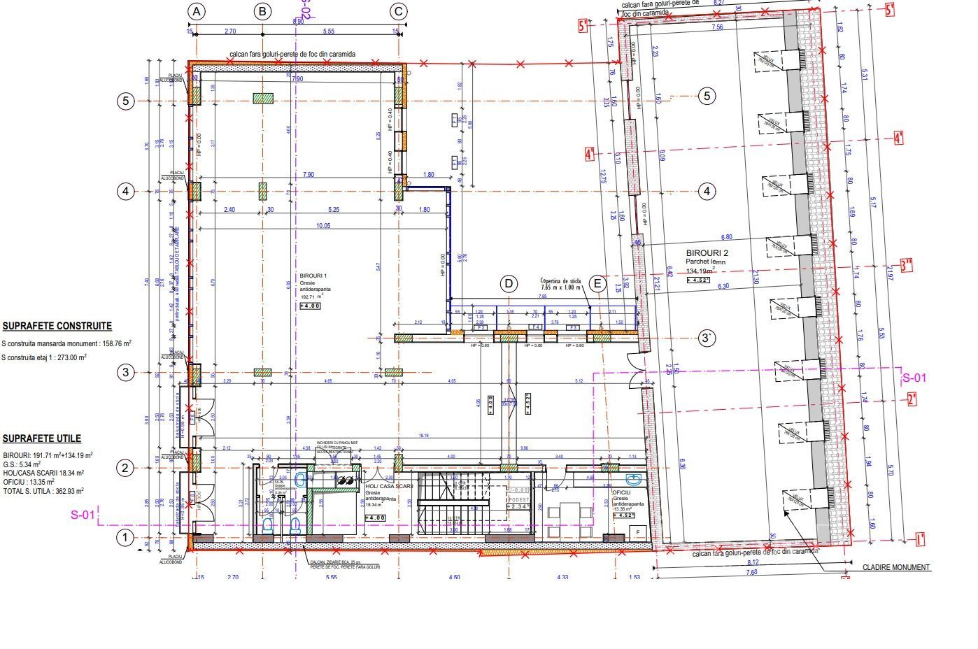
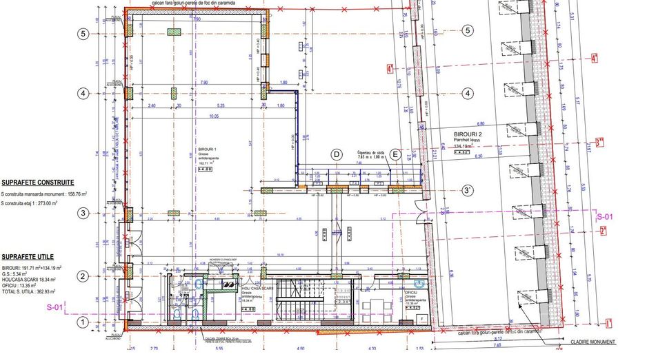
Cladirea se remarca printr-o fatada contemporana, cu linii curate si accente arhitecturale moderne, oferind o imagine profesionista si prestigioasa pentru orice companie. Spatiul beneficiaza de o suprafata utila totala de 363 mp, configurat inteligent pentru a permite atat activitatea individuala, cat si munca in echipa, cu posibilitatea de compartimentare suplimentara in functie de cerintele chiriasului.

Compartimentare actuala:

-2 open space-uri generoase, luminoase si usor de personalizat

-Grup sanitar modern

-Oficiu , ideal pentru zona de servire a cafelei sau pauze rapide

-Hol de acces spacios, ce permite o primire eleganta a vizitatorilor

Accesul catre etaj se realizeaza atat printr-o casa a scarilor cat si cu ajutorul unui lift de ultima generatie, asigurand astfel acces facil si eficient pentru angajati si vizitatori.

Suprafetele vitrate generoase confera spatiului o atmosfera deschisa si primitoare, cu lumina naturala abundenta pe parcursul intregii zile. Acest detaliu nu doar ca sporeste confortul si productivitatea, dar permite si o amenajare interioara creativa si eleganta.

Prin locatia ultracentrala, aspectul modern al cladirii si functionalitatea spatiului, aceasta proprietate este ideala pentru companiile care isi doresc o prezenta solida si vizibila intr-o zona de top a orasului.

Citește mai mult

  • Tip imobil
    Clădire birouri
  • Etaj
    1
  • Clasă birouri
    A
  • Număr camere
    2
  • Număr băi
    2
  • Suprafață utilă
    363 mp
  • Disponibilitate
    Imediat
  • Suprafață totală birouri
    363 mp
  • Compartimentare spațiu
    Open space
  • An construcție
    2024
  • Construcție nouă
    Da
  • Număr etaje clădire
    4
  • Are demisol
    Da

Facilități

Centrală termică
Contorizare separată
Internet
Restaurant în clădire
Salubritate
Servicii de întreținere și reparații lifturi
Sistem de ventilație
Telefon
Vedere panoramică
Ovidiu Stetco - Impakt Imobiliare
Ovidiu Stetco
Manager - Expert Imobiliar

0754-038.635


Solicită chiar acum o vizionare
Nume
Telefon
Email
Sună acum Solicită vizionare
Necesare:

Site-ul nu poate funcționa corect fără aceste cookie-uri. Vezi cookie-urile

Statistică:

Strângem statistici anonime despre voi, vizitatorii unici, pentru a vă îmbunătăți experiența dumneavoastră. Vezi cookie-urile

Marketing:

Pentru a ne promova mai eficient serviciile noastre, folosim cookies pentru a vă identifica și a vă oferi proprietăți și servicii personalizate. Vezi cookie-urile

Acest site folosește cookies, află detalii. Alege ce tipuri de cookies dorești să permitem: