ID CP2484117

Spatiu birouri 1320 m2 finisat Europa

ID CP2484117

21,136 € (negociabil) + 21% TVA

Spațiu de birouri de închiriat
Europa, Cluj-Napoca
1,321 mp
2023

Situata într-o zonă premium a Clujului, proprietatea beneficiază de acces rapid către toate punctele de interes: centre de afaceri, spații comerciale, instituții publice si zone de recreere. În plus, la parterul imobilului sunt spații comerciale care adaugă un plus de valoare investiției.

Această combinație de spatiu de birouri high-end și teren pentru dezvoltare rezidențială oferă oportunități extinse de închiriere și dezvoltare, fiind o alegere strategică pentru investitorii care doresc să capitalizeze pe potențialul de creștere al orașului.

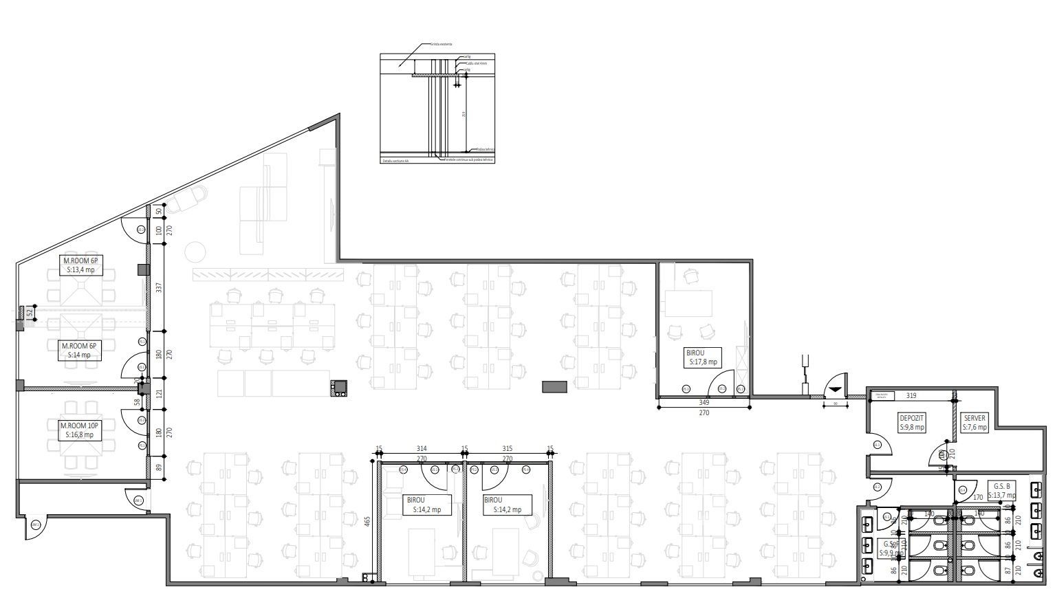
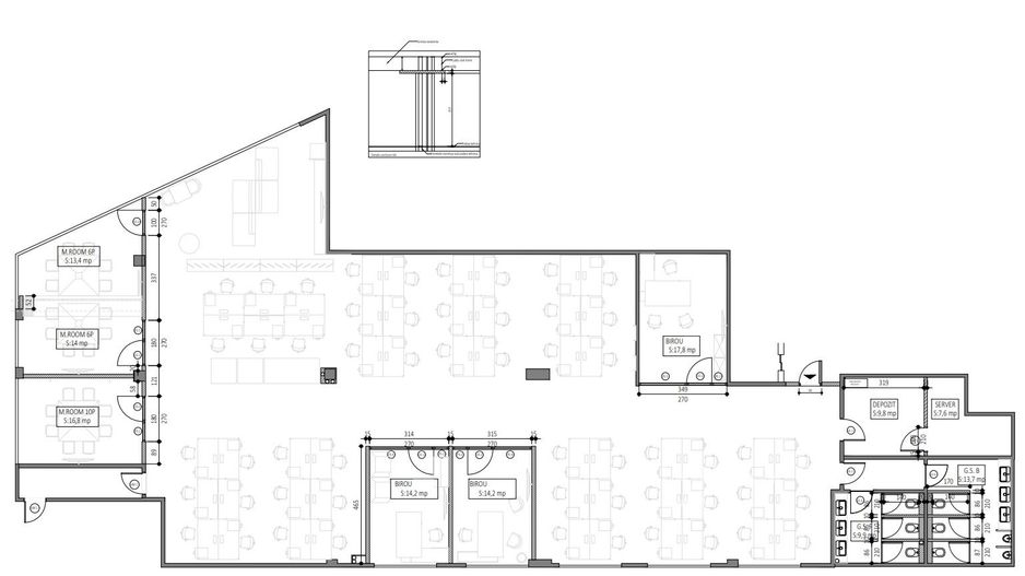
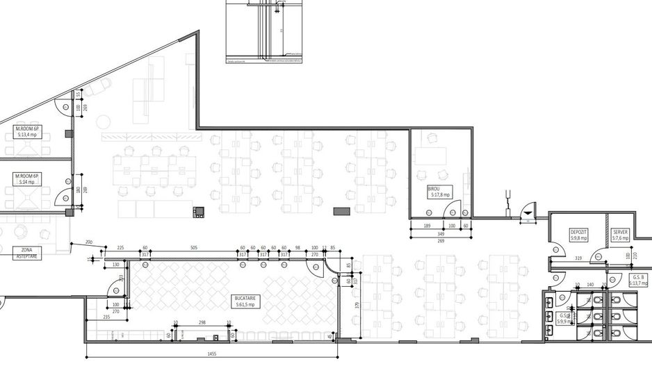
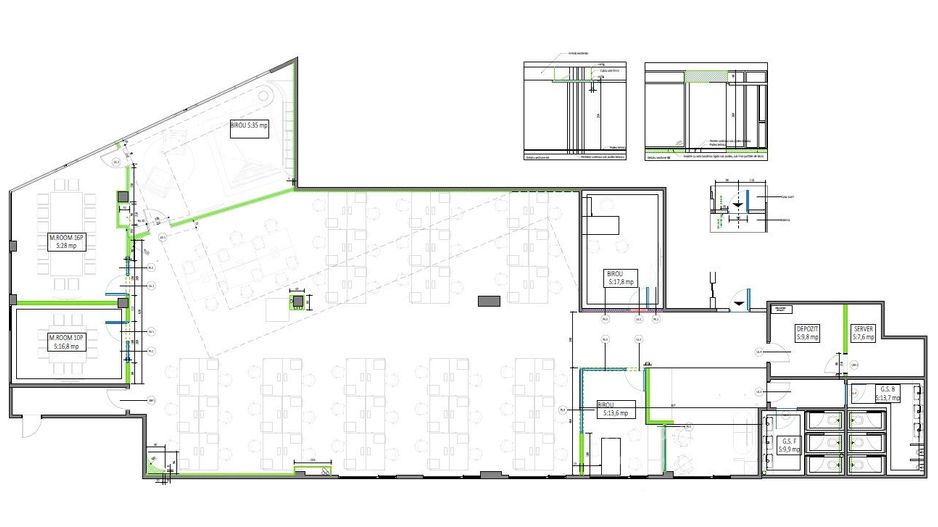
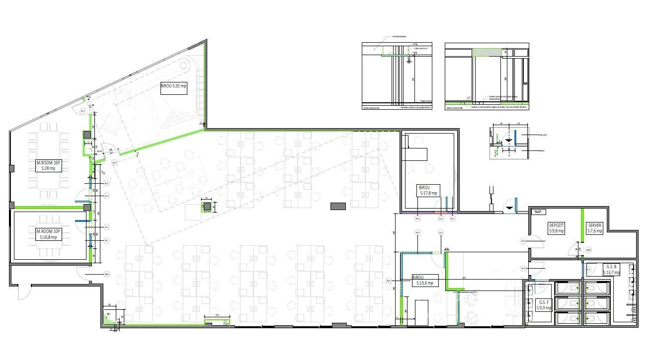
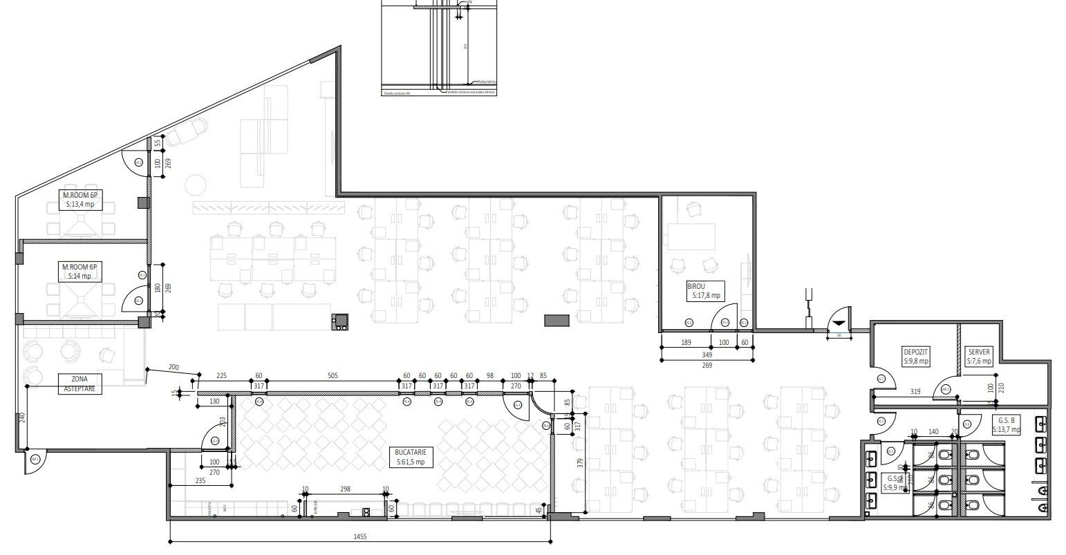
Cu o suprafață utilă generoasă de 1320 m² (aproximativ 440 m² pe nivel), acest spațiu de birouri premium este conceput pentru a oferi confort și eficiență maximă. Compartimentarea inteligentă, conform schițelor de prezentare, include grupuri sanitare separate pentru bărbati și femei la fiecare nivel, săli de conferință, birouri individuale, bucătarie, spații pentru depozitare, cameră server.

Spațiile se pretează pentru o gama variată de activități: Servicii de educație și formare profesională, servicii medicale, agenție imobiliară, agenție de turism, agenție de publicitate, servicii IT, întreținere corporală (fitness, masaj, cosmetica), studio foto/video.

FINISAJE SI DOTĂRI PREMIUM

Podea de foc clasa A din fosfat de calciu pentru siguranță și durabilitate;

-Sistem de încălzire si răcire Daikin pentru un climat optim pe tot parcursul anului;

-Sistem de ventilație si tratare a aerului pentru un mediu sănătos si confortabil;

-Pereți fonoizolați, asigurând un ambient liniștit si productiv;

-Autorizație ISU in derulare, cu situația actuala documentată;

-Tablete la intrarea in meeting-room-uri, pentru gestionarea eficienta a spațiilor de întalnire.

Clădirea are doua puncte de acces, oferind flexibilitate si acces facil: Lift propriu, pentru confort si eficiență in deplasare;

Spatiul poate fi inchiriat in totalitate cele 3 niveluri sau per nivel ( 440 m2 utili / nivel)

Acest spațiu reprezintă o oportunitate excelentă de închiriere pentru companiile de top din Cluj-Napoca, care își doresc un mediu de lucru modern și elegant pentru angajații lor. Designul sofisticat și facilitățile de ultima generație transformă acest imobil într-un spațiu ideal pentru sedii corporate, firme IT, centre de coworking sau alte activitati de servicii .

Citește mai mult

  • Etaj
    1, 2, 3
  • Număr camere
    10
  • Număr băi
    6
  • Suprafață utilă
    1,321 mp
  • Disponibilitate
    Imediat
  • Suprafață totală birouri
    1,320 mp
  • Compartimentare spațiu
    Open space
  • An construcție
    2023
  • Construcție nouă
    Da
  • Număr etaje clădire
    3
  • Clasă Energetică
    A

Facilități

Internet
Ovidiu Stetco - Impakt Imobiliare
Ovidiu Stetco
Manager - Expert Imobiliar

0754-038.635


Solicită chiar acum o vizionare
Nume
Telefon
Email
Sună acum Solicită vizionare
Necesare:

Site-ul nu poate funcționa corect fără aceste cookie-uri. Vezi cookie-urile

Statistică:

Strângem statistici anonime despre voi, vizitatorii unici, pentru a vă îmbunătăți experiența dumneavoastră. Vezi cookie-urile

Marketing:

Pentru a ne promova mai eficient serviciile noastre, folosim cookies pentru a vă identifica și a vă oferi proprietăți și servicii personalizate. Vezi cookie-urile

Acest site folosește cookies, află detalii. Alege ce tipuri de cookies dorești să permitem: