ID CP2853685

Cladire premium inchiriere | Showroom, clinica, birouri | Buna Ziua

ID CP2853685

15,000 € + 21% TVA

Spațiu comercial de închiriat
Calea Turzii, Cluj-Napoca
1,267 mp
2011

Impakt Imobiliare propune spre inchiriere o cladire moderna, amplasata intr-una dintre cele mai vizibile si accesibile zone ale municipiului, in proximitatea arterei Calea Turzii. Pozitia ei o recomanda pentru companii care au nevoie de expunere, acces rapid si spatiu care poate fi adaptat exact pe specificul activitatii: clinici medicale, servicii, showroom auto, birouri sau activitati corporate.

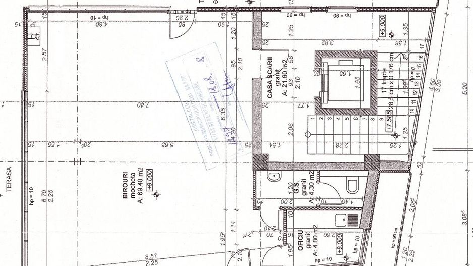
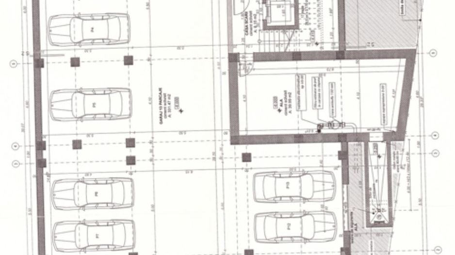
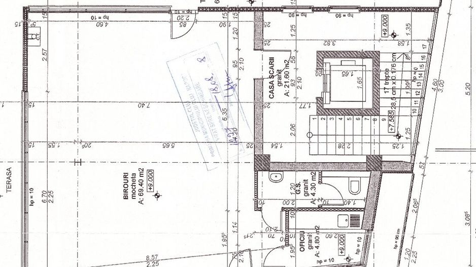
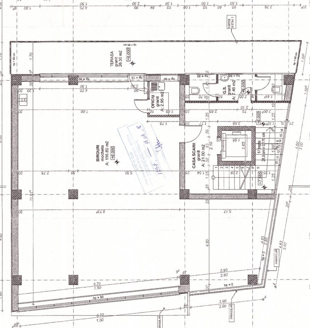
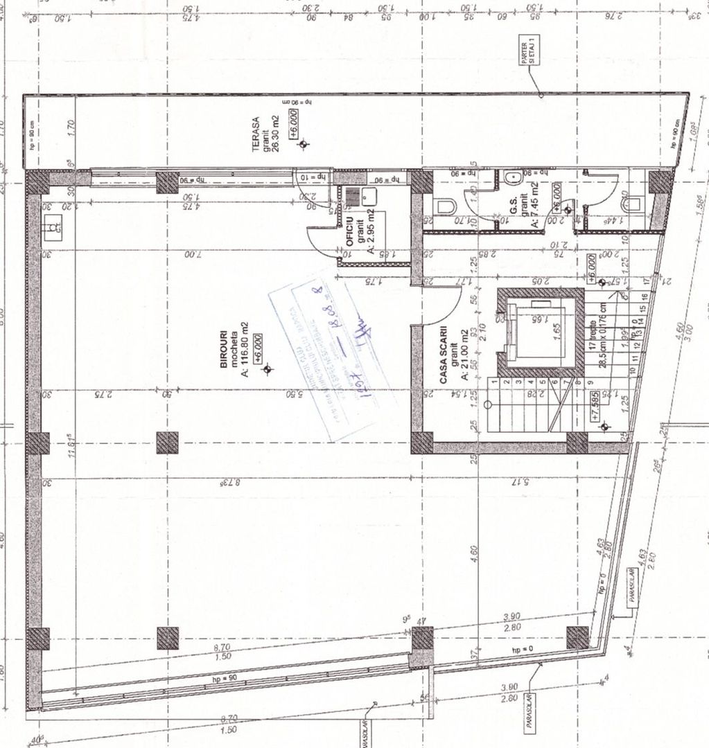
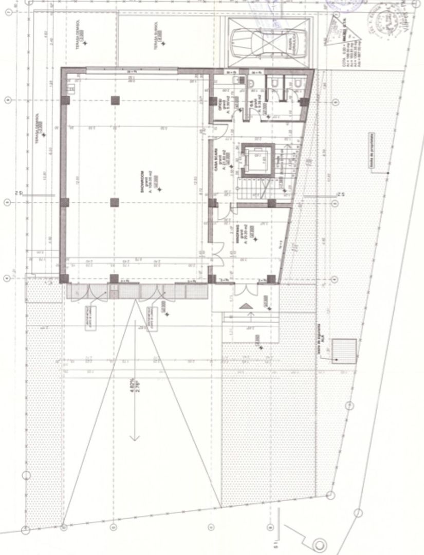
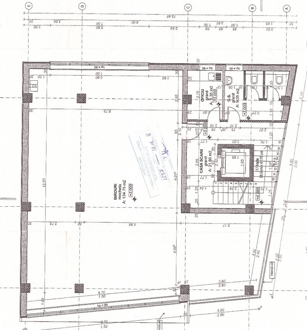
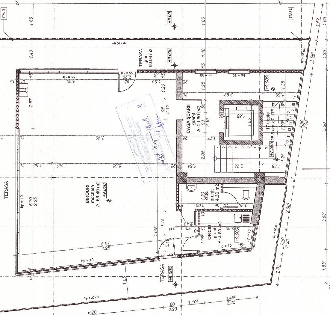
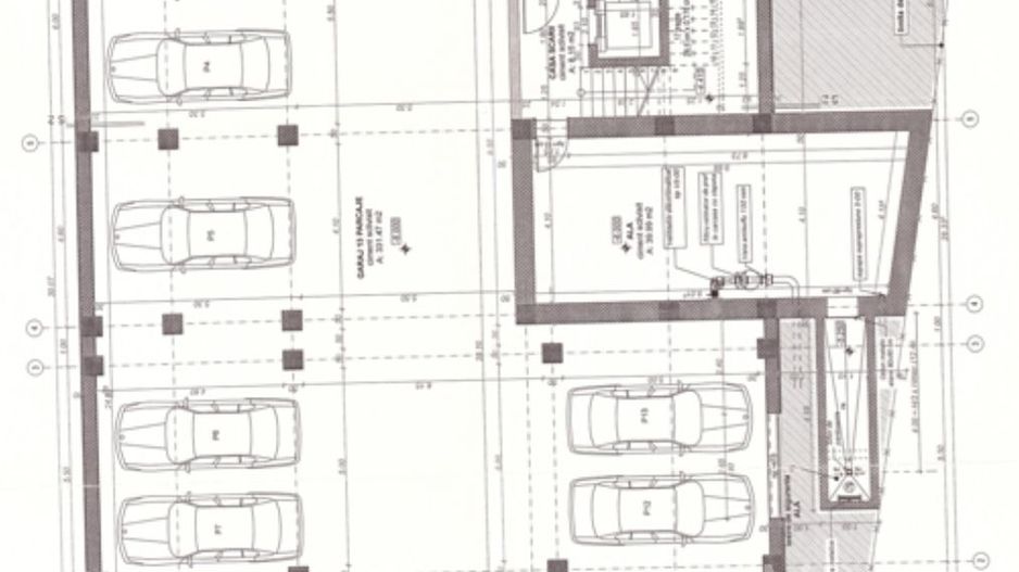
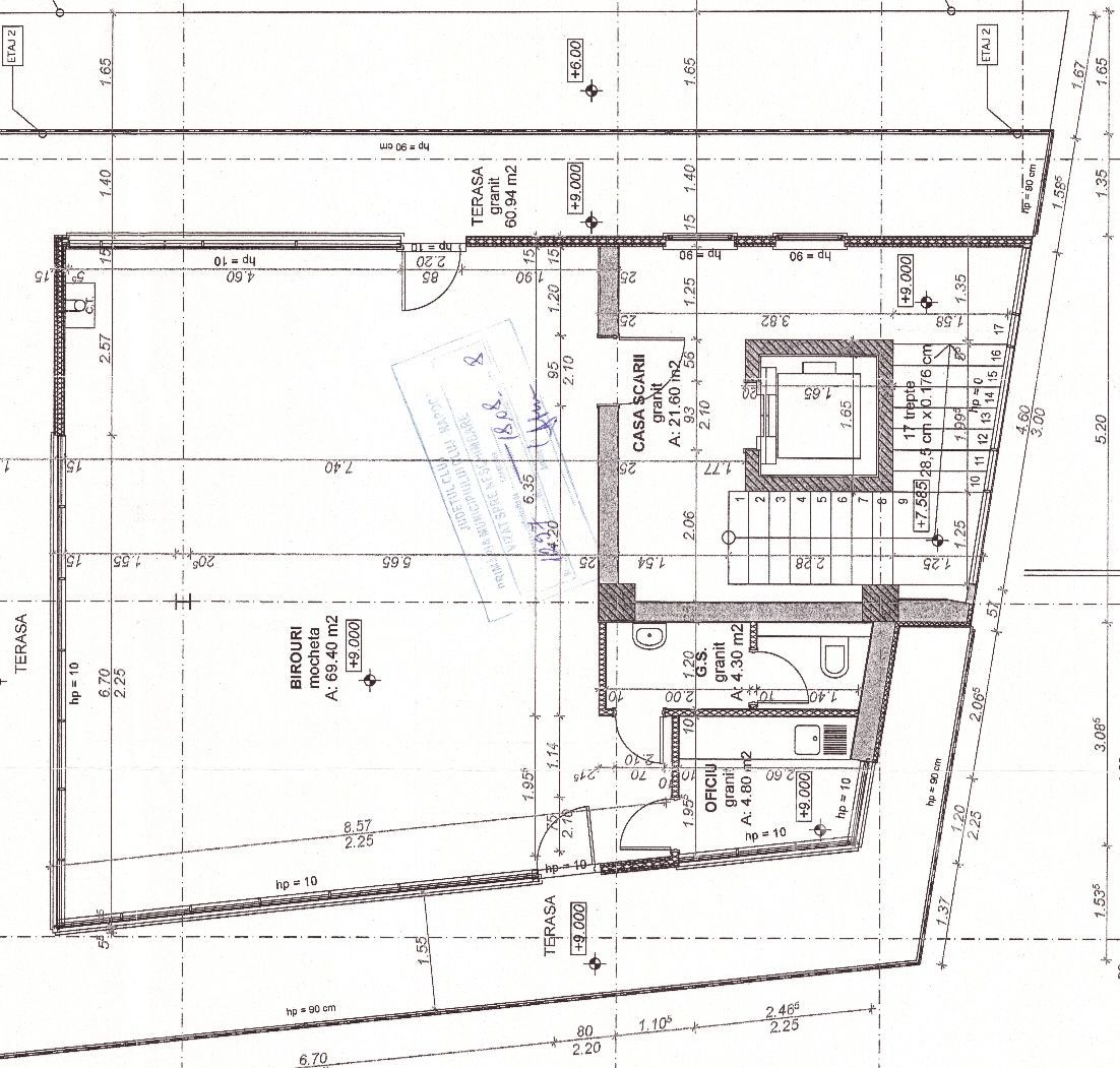
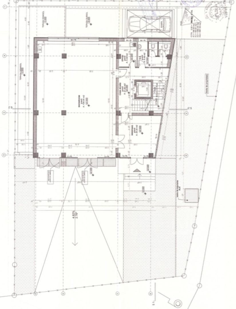
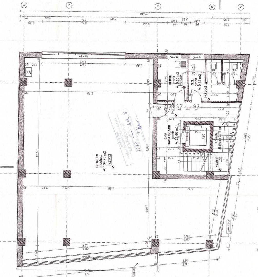
Cladirea are o suprafata totala de 1267 mp si este conceputa pe niveluri eficiente, fiecare cu acces si contorizare separata, bucatarie sau chicineta si grup sanitar. Etajul retras dispune de o terasa de 60 mp, iar demisolul beneficiaza de o terasa de 45.6 mp si acces direct spre exterior. La subsol exista parcare interioara pentru 13 autoturisme, cu acces prin lift hidraulic, completata de 9 locuri de parcare exterioara in partea frontala.

Spatiile pot fi reorganizate in functie de activitate, iar proprietarul este deschis la adaptari si amenajari suplimentare pentru chiriasi stabiliti pe termen lung (contract minim 5 ani), astfel incat configuratia finala sa raspunda perfect nevoilor medicale, comerciale sau administrative ale viitorului ocupant.

Cladirea este autorizata pentru servicii de interes public si este compatibila cu functiuni precum clinici, showroom auto, birouri, activitati economice si alte servicii profesionale.

Pentru companiile care cauta o cladire reprezentativa, cu acces excelent, vizibilitate si parcari proprii, aceasta proprietate poate fi o solutie extrem de avantajoasa.

Impakt Imobiliare – prezentam spatii verificate, pentru afaceri care vor sa creasca in locatia potrivita.

Citește mai mult

  • Tip imobil
    Clădire birouri
  • Trafic pietonal
    Moderat
  • Etaj
    Parter, 1, 2, 3
  • Număr camere
    7
  • Număr băi
    4
  • Număr terase
    3
  • Număr bucătării
    4
  • Suprafață utilă
    1,267 mp
  • Disponibilitate
    Imediat
  • Compartimentare spațiu
    Parțial compartimentat
  • Număr locuri parcare
    22
  • An construcție
    2011
  • Construcție nouă
    Da
  • Număr etaje retrase
    1
  • Are demisol
    Da

Facilități

Apă
Canalizare
Curent
Gaz
Office Impakt - Impakt Imobiliare
Office Impakt

0753-321.312


Solicită chiar acum o vizionare
Nume
Telefon
Email
Sună acum Solicită vizionare
Necesare:

Site-ul nu poate funcționa corect fără aceste cookie-uri. Vezi cookie-urile

Statistică:

Strângem statistici anonime despre voi, vizitatorii unici, pentru a vă îmbunătăți experiența dumneavoastră. Vezi cookie-urile

Marketing:

Pentru a ne promova mai eficient serviciile noastre, folosim cookies pentru a vă identifica și a vă oferi proprietăți și servicii personalizate. Vezi cookie-urile

Acest site folosește cookies, află detalii. Alege ce tipuri de cookies dorești să permitem: