ID CP2930492

Spatiu comercial + business de vânzare

ID CP2930492

435,000 €

Spațiu comercial de vânzare
Marasti, Cluj-Napoca
105 mp

Impakt Imobiliare vă propune o oportunitate rară în zona centrală a Clujului: spațiu comercial premium de 105 mp + business activ, profitabil și stabil – Barbershop (înființat 2014).

O investiție completă: imobil + brand + cashflow existent.

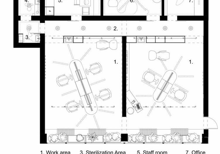
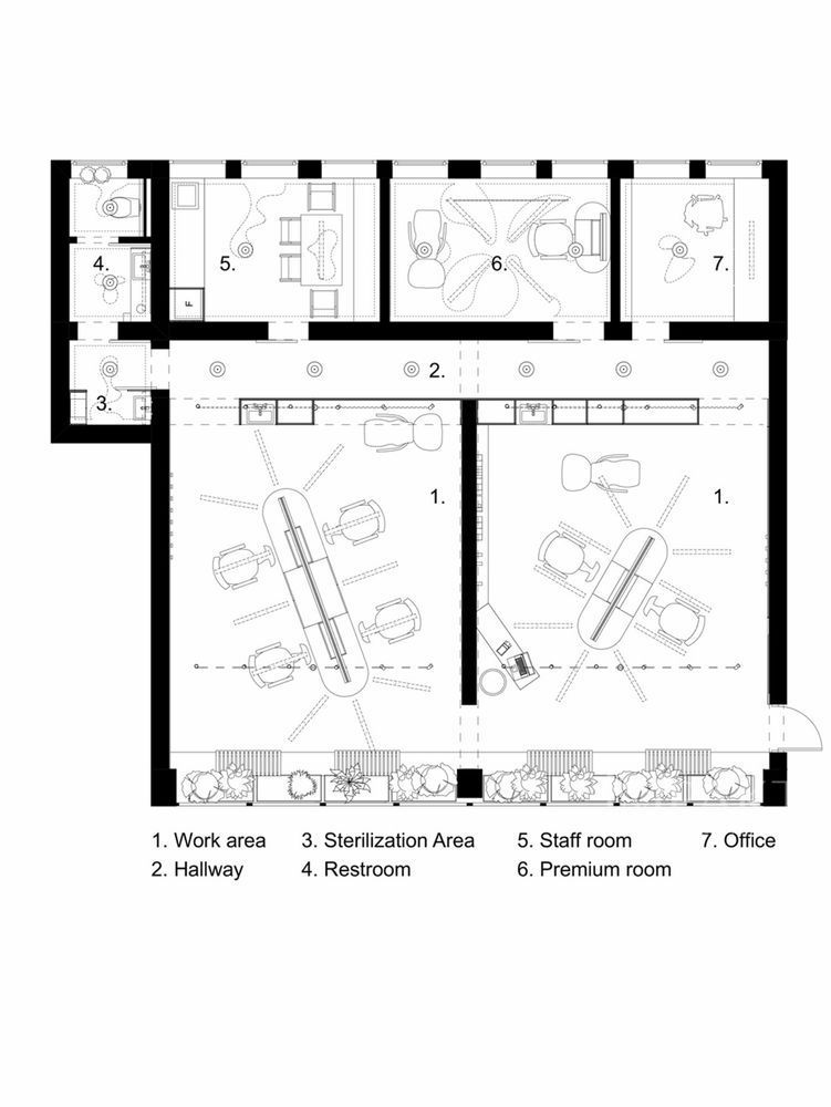
Detalii spațiu comercial – 105 mp

✔ 5 încăperi compartimentate eficient + baie

✔ Înălțime generoasă: 3,8 m

✔ Vitrină impresionantă: 10 m lățime × 3,5 m înălțime

✔ Vizibilitate excelentă la stradă

✔ Renovare integrală în 2024

✔ Design realizat împreună cu arhitecți

✔ Instalații electrice și sanitare complet noi

✔ Sistem alarmă + supraveghere video

✔ Sistem profesional de sonorizare

✔ 21 locuri de parcare în clădire (2 dedicate spațiului)

Spațiul oferă o imagine premium, ideal pentru servicii, clinică, showroom sau retail de nișă.

Business stabil, activ din 2014

✔ 7 posturi de lucru (cu posibilitate de extindere)

✔ Brand cunoscut pe piața locală

✔ Clientelă fidelă și recurentă

✔ Reputație solidă construită în peste 10 ani

✔ Cifră de afaceri 2025: peste 120.000 €

✔ Se predă complet funcțional (echipamente + amenajare)

Businessul generează flux constant și poate fi operat imediat fără investiții suplimentare.

Avantaje investiție

• Zonă semi centrală, cu trafic

• Vizibilitate comercială excelentă

• Spațiu modern, fără costuri de renovare

• Afacere cu istoric și stabilitate financiară

• Potențial de scalare

• Ideal pentru investitor sau antreprenor

Această proprietate oferă un echilibru rar între activ imobiliar premium și business funcțional profitabil.

Pentru informații suplimentare privind prețul și condițiile de tranzacționare, vă rugăm să ne contactați telefonic.

Impakt Imobiliare – Investiții care produc valoare reală.

Citește mai mult

  • Tip imobil
    Clădire birouri
  • Număr camere
    5
  • Număr băi
    1
  • Număr bucătării
    1
  • Suprafață utilă
    105 mp
  • Disponibilitate
    Imediat

Facilități

Iulian Sandu - Impakt Imobiliare
Iulian Sandu
Consilier Imobiliar

0756-195.577


Solicită chiar acum o vizionare
Nume
Telefon
Email
Sună acum Solicită vizionare
Necesare:

Site-ul nu poate funcționa corect fără aceste cookie-uri. Vezi cookie-urile

Statistică:

Strângem statistici anonime despre voi, vizitatorii unici, pentru a vă îmbunătăți experiența dumneavoastră. Vezi cookie-urile

Marketing:

Pentru a ne promova mai eficient serviciile noastre, folosim cookies pentru a vă identifica și a vă oferi proprietăți și servicii personalizate. Vezi cookie-urile

Acest site folosește cookies, află detalii. Alege ce tipuri de cookies dorești să permitem: