ID CP2515762

Casă Superfinisată cu 3 dormitoare in cartierul Exclusivist Europa!

Această proprietate nu mai este activă,
te invităm să vizualizezi proprietăți similare

ID CP2515762

349,000 € (negociabil)

Casă / Vilă cu 4 camere de vânzare
Europa, Cluj-Napoca
120 mp
2015

Impakt Imobiliare vă propune spre vânzare o casă superfinisată, cu design contemporan și confort premium, situată într-o zonă exclusivistă și liniștită din Cartierul Europa, Cluj-Napoca.

Această proprietate excepțională se remarcă printr-o compartimentare practică, finisaje de înaltă calitate și un ambient modern, perfect adaptat cerințelor unei familii contemporane. Cu o suprafață utilă de 120 mp și un teren aferent de 110 mp, casa face parte dintr-un triplex, fiind unitatea din mijloc – ceea ce îi conferă o excelentă eficiență energetică și un confort termic superior.

📍 Localizare premium

Imobilul este amplasat într-o zonă liniștită a cartierului Europa, cu acces facil din strada principală și barieră de securitate la intrare, oferind un nivel ridicat de intimitate și siguranță.

🏠 Compartimentare ideală:

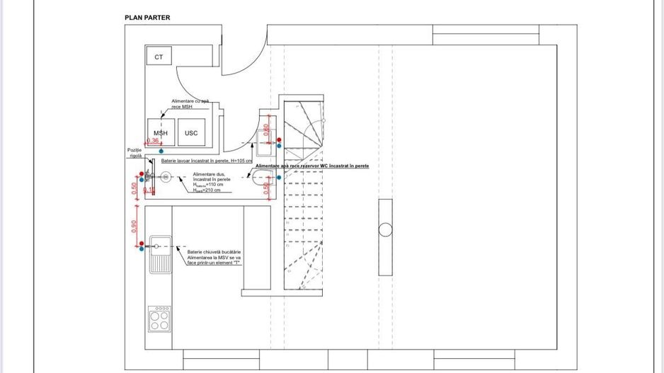
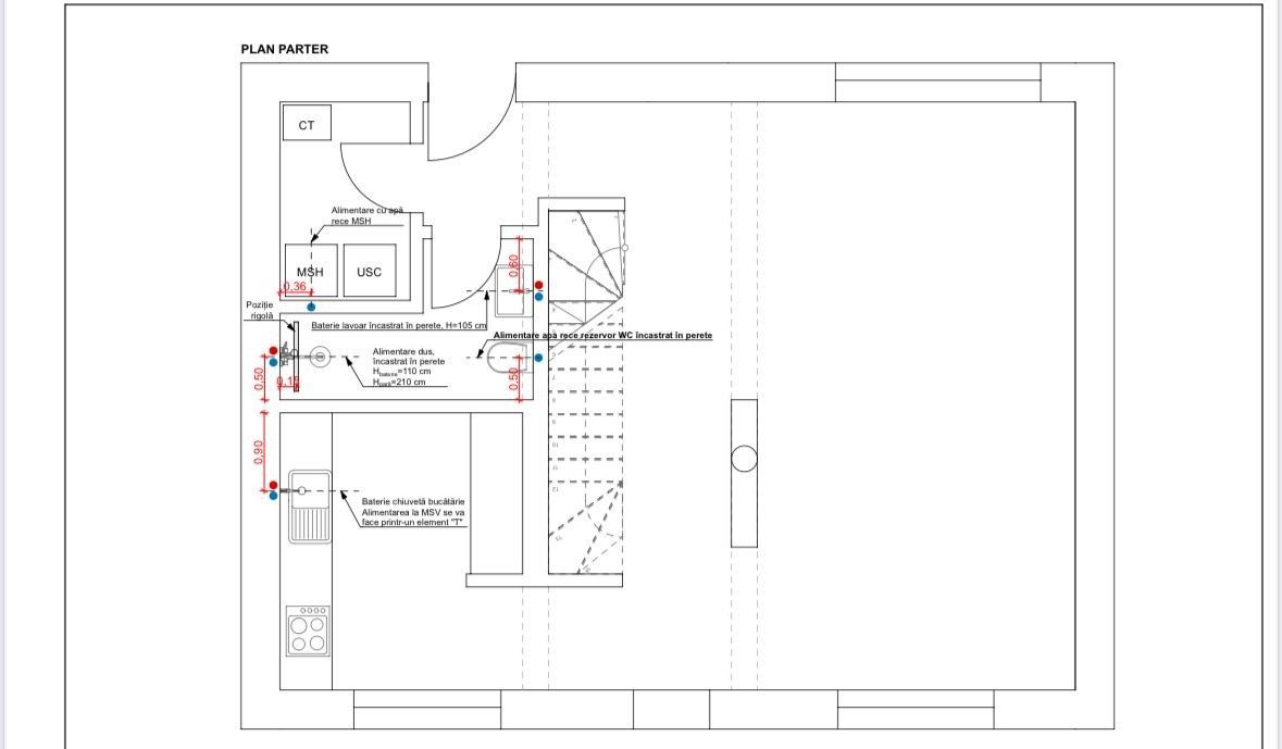
Parter:

Living spațios și luminos, dotat cu șemineu pe lemne, ideal pentru seri relaxante

Bucătărie închisă, complet separată

Baie modernă cu duș

Cameră tehnică și spațiu de depozitare

Hol de acces generos

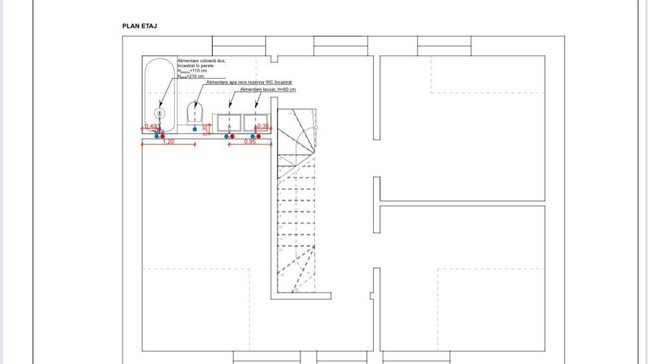
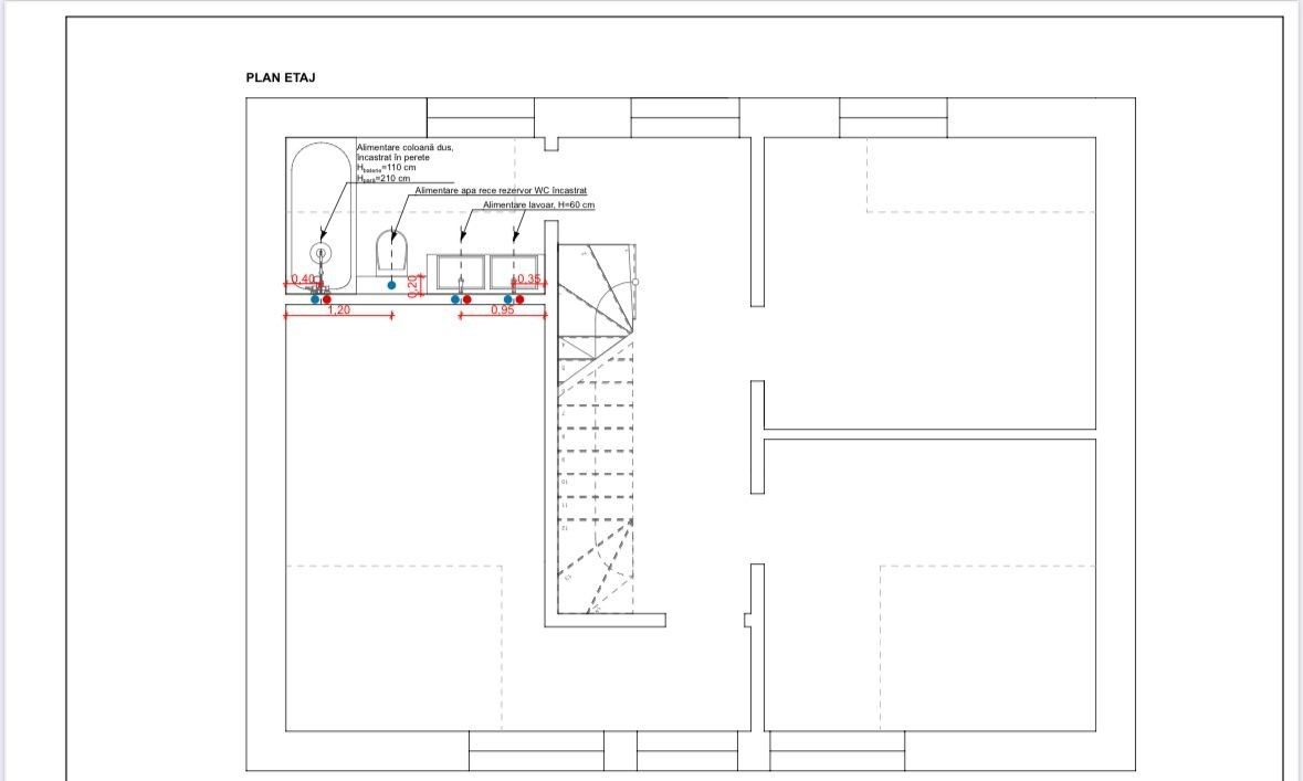
Mansardă:

3 dormitoare confortabile

Baie elegantă cu finisaje moderne

Hol de distribuție

Pod:

Spațiu util de depozitare

Exterior:

Terasă amenajată pentru relaxare

Loc de parcare inclus în proprietate

🛡️ Dotări și siguranță:

Sistem de supraveghere video

Sistem de alarmă inteligent, controlabil direct de pe telefonul mobil

Seif integrat

Încălzire eficientă, izolație exterioară completă și tâmplărie termoizolantă de calitate superioară

Toate instalațiile (electrică, termică și sanitară) sunt noi și realizate cu materiale premium

🎨 Design și calitate:

Proiectul de design interior a fost realizat de echipa Unu Plus Unu, recunoscută pentru soluțiile moderne, funcționale și estetice. Casa îmbină armonios stilul contemporan cu elemente naturale, oferind un cămin elegant și primitor.

📷 Imagini reale & randări

Galeria de imagini cuprinde atât fotografii reale ale imobilului, cât și randări 3D care ilustrează potențialul amenajării.

📞 Pentru mai multe informații sau pentru a programa o vizionare:

Nu ezitați să ne contactați. O proprietate rară, perfectă pentru cei care caută liniște, confort și stil într-una dintre cele mai dorite zone din Cluj-Napoca!

Citește mai mult

  • Număr camere
    4
  • Dormitoare
    3
  • Număr bucătării
    1
  • Număr băi
    2
  • Număr balcoane
    2
  • Număr terase
    1
  • Număr locuri parcare
    1
  • Disponibilitate
    Imediat
  • Tip casă
    Triplex
  • Stare interior
    Ultrafinisat
  • Suprafață utilă
    120 mp
  • Suprafață construită
    162 mp
  • Acoperiș
    Tablă
  • Stadiu construcție
    Finalizată
  • An construcție
    2015
  • Construcție nouă
    Da
  • Tip construcție
    Cărămidă
  • Număr etaje clădire
    2

Facilități

Acoperiș
Aer condiționat
Apă
Apometre
Bucătărie deschisă
Bucătărie mobilată
Cabină de duș
Cadă
Calorifere
Canalizare
Centrală proprie
Contor căldură
Contor electric
Curent
Faianță
Frigider
Gaz
Geamuri termopan
Glet
Gresie
Hotă
Iluminat stradal
Încălzire prin pardoseală
Internet
Izolație exterioară
Izolație interioară
Mașină de spălat rufe
Mașină de spălat vase
Mijloace de transport în comun
Mobilat complet
Mobilat lux
Parcare acoperită
Parchet
Pază
Rulouri / obloane manuale
Senzor de fum
Sistem de alarmă
Străzi asfaltate
Străzi betonate
Supraveghere video
Telecomandă poartă acces auto
Ușă intrare metal
Uși interior lemn
Var
Vopsea lavabilă
Necesare:

Site-ul nu poate funcționa corect fără aceste cookie-uri. Vezi cookie-urile

Statistică:

Strângem statistici anonime despre voi, vizitatorii unici, pentru a vă îmbunătăți experiența dumneavoastră. Vezi cookie-urile

Marketing:

Pentru a ne promova mai eficient serviciile noastre, folosim cookies pentru a vă identifica și a vă oferi proprietăți și servicii personalizate. Vezi cookie-urile

Acest site folosește cookies, află detalii. Alege ce tipuri de cookies dorești să permitem: