ID CP2645470
Spatiu comercial premium in zona Parcului Feroviarilor!
ID CP2645470
800,000 €
Impakt Imobiliare va propune spre vanzare un spatiu comercial situat intr-o cladire noua, amplasat la parter. Proprietatea se afla in imediata vecinatate a Parcului Feroviarilor, o zona in plina regenerare urbana.
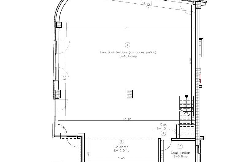
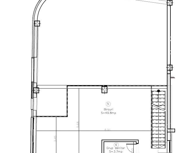
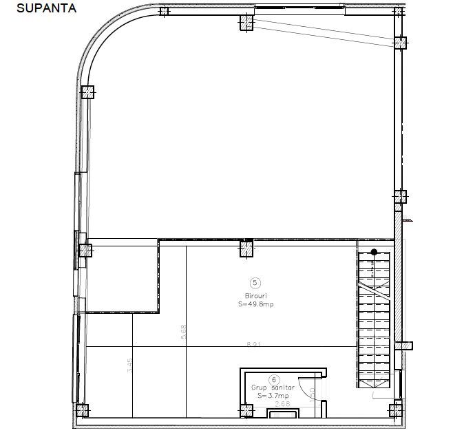
Suprafata si compartimentare:
– Suprafata utila: 177,2 mp
– Parter: 123,7 mp – compartimentati pentru functiuni tertiare cu acces public, include chicineta, grup sanitar si spatiu de depozit
– Subpanta: 53,5 mp – amenajata ca zona de birouri cu grup sanitar propriu
Spatiul este ideal pentru activitati precum showroom, cafenea, banca, sediu de firma sau alte functiuni comerciale care beneficiaza de trafic pietonal si vizibilitate directa.
Zona Parcului Feroviarilor este in plina dezvoltare, recent modernizata, ceea ce atrage proiecte noi precum blocuri de locuinte cu functiuni comerciale sau spatii creative.
Pentru detalii suplimentare sau programarea unei vizionari, echipa Impakt Imobiliare va sta cu drag la dispozitie.
 
         
         
         
         
         
         
         
         
         
         
         
         
         
         
         
         
         
         
         
         
        