ID CP2482588

Apartament 3 camere cu terasa de 39 mp, zona Parcului Central

ID CP2482588

417,000 € + 21% TVA

Apartament cu 3 camere de vânzare
Grigorescu, Cluj-Napoca
80.4 mp
2025

Impakt Imobiliare va propune spre vanzare un apartament cu 3 camere semidecomandat, in zona Centrala a Clujului!

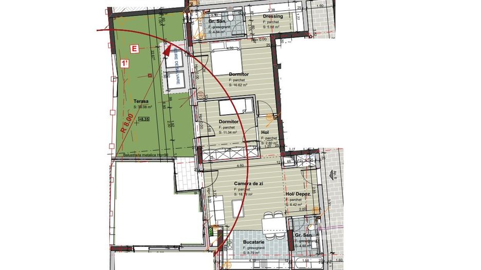
Apartamentul dispune de o suprafata utila de 68.75 mp la care se adauga o terasa de 39mp si este compartimentat astfel: 2 dormitoare, unul cu baie proprie si dressing, un living cu bucatarie, o baie pe hol, un hol. Acesta se afla la etajul 2 al unui imobil cu regimul de inaltime 2S+P+2E+2ER, aflat in faza de constructie.

Apartamentul se preda la stadiu de semifinisat, avand peretii tencuiti si gletuiti, incalzire in pardoseala, cutii si rulouri montate actionate electric, peretii interiori si exteriori din caramida, peretii comuni cu alte apartamente din caramida umpluta cu vata bazaltica, pregatire instalatie aer conditionat, fatada ventilata si tencuiala decorativa, izolatie de 10 cm cu vata bazaltica.

Printre Avantajele imobilului enumeram :

Incalzire in pardoseala

Centrala de bloc cu preparator apa calda si caldura individual

Balcoane si terase placate cu gresie ceramica

Gradinile cu gard si gazon verde

Utilitati functionale cu contoare montate

Panou tactil interactiv Smart care permite rezidentilor sa controleze si monitorizeze activitatea din apartament oriunde s-ar afla in lume

Videointerfon montat

Instalatie de aer conditionat

Pregatire cutie rulouri si instalatie

Pregatire cutie jaluzele exterioare

Pregatiire cutie schimbator aer

Pereti intre apartamente fonoizolanti

Tamplarie Schuco sau similara

Pretul unei parcari standard este de 25.000 Eur + TVA

Pretul unei parcari cu statie de incarcare este de 28.000 Eur + TVA

Pentru mai multe detalii sau pentru a programa o vizionare va asteptam la sediul agentiei noastre sau ne puteti suna la numerele de telefon afisate.

*Termen de predare in toamna anului 2025*

** In pretul afisat nu este inclus si TVA-ul**

***Avans minim 50 %

Citește mai mult

  • Tip apartament
    Apartament
  • Compartimentare
    Semidecomandat
  • Număr camere
    3
  • Număr bucătării
    1
  • Număr băi
    2
  • Etaj
    2
  • Suprafață utilă
    80.4 mp
  • Suprafață construită
    125 mp
  • Suprafață totală
    119.48 mp
  • Disponibilitate
    Imediat
  • Orientare
    Vest
  • Confort
    Lux
  • Stare interior
    Semifinisat
  • Număr balcoane
    2
  • Imobil
    Bloc de apart.
  • Stadiu construcție
    Semifinisat
  • An construcție
    2025
  • Construcție nouă
    Da
  • Tip construcție
    Cărămidă
  • Număr etaje clădire
    4
  • Clasă Energetică
    A

Facilități

Apă
Canalizare
Curent
Garaj
Gaz
Geamuri termopan
Încălzire prin pardoseală
Interfon
Internet
Izolație exterioară
Lift
Străzi asfaltate
Ovidiu Stetco - Impakt Imobiliare
Ovidiu Stetco
Manager - Expert Imobiliar

0754038635


Solicită chiar acum o vizionare
Nume
Telefon
Email
Sună acum Solicită vizionare
Necesare:

Site-ul nu poate funcționa corect fără aceste cookie-uri. Vezi cookie-urile

Statistică:

Strângem statistici anonime despre voi, vizitatorii unici, pentru a vă îmbunătăți experiența dumneavoastră. Vezi cookie-urile

Marketing:

Pentru a ne promova mai eficient serviciile noastre, folosim cookies pentru a vă identifica și a vă oferi proprietăți și servicii personalizate. Vezi cookie-urile

Acest site folosește cookies, află detalii. Alege ce tipuri de cookies dorești să permitem: